История версий
LIRA-FEM
Грунт
-
Добавлены новые опции формирования Условных фундаментов для свай: при расчете Rусл по формуле h*tg(φII/4), где h - глубина погружения свай в грунт, добавлен учет глубины hd, на которой не учитывается несущая способность fi по боковой поверхности сваи. При этом, если параметр “h-hd” приводит к значению Rусл < 0.5D (половина диаметра сваи), то в расчете принимается Rусл = 0.5D.
- В диалоге "Результаты в точке" добавлена опция для вывода результатов расчета специфических грунтов. Эта визуализация позволяет посмотреть детали расчета, т.е. является частично трассировкой расчета. Например, для просадочного грунта показывается заштрихованный участок эпюры полных напряжений Sz, который дал вклад в расчет осадки от просадки - хорошо видно начальное просадочное давление и насколько суммарное напряжение Sz послойно превышает начальное просадочное давление. Напомним: в суммарное напряжение Sz входит вес просадочного грунта с учетом взвешивающего действия воды, хотя в исходном расчете без учета просадки этот грунт был без признака W (обводненный), поэтому на новой эпюре для расчета специфического грунта по подошве просадочного слоя мы видим скачок напряжений, которого нет в расчете без просадки.
- В настройках шкалы появилась опция вывода процентов в диапазонах шкалы - какая доля точек исходных данных и результатов вычислений попала в данный диапазон.
- В легенде (текстовое сопровождение) к результатам расчета (осадка и коэффициенты постели) появился вывод их среднего значения из всех контуров нагрузок с результатами.
Грунт
Реализован расчет осадки для проверки эксплуатационной пригодности и определение расчетного сопротивления для фундаментов в соответствии с EN 1997-1:2004. Вертикальные напряжения грунта σz на глубине z рассчитываются на основе подхода Буссинеска и принципа суперпозиции.
Уточнено построение эпюры бытового давления в случае, если подушка - это нагрузка, и подушка находится выше уровня рельефа.
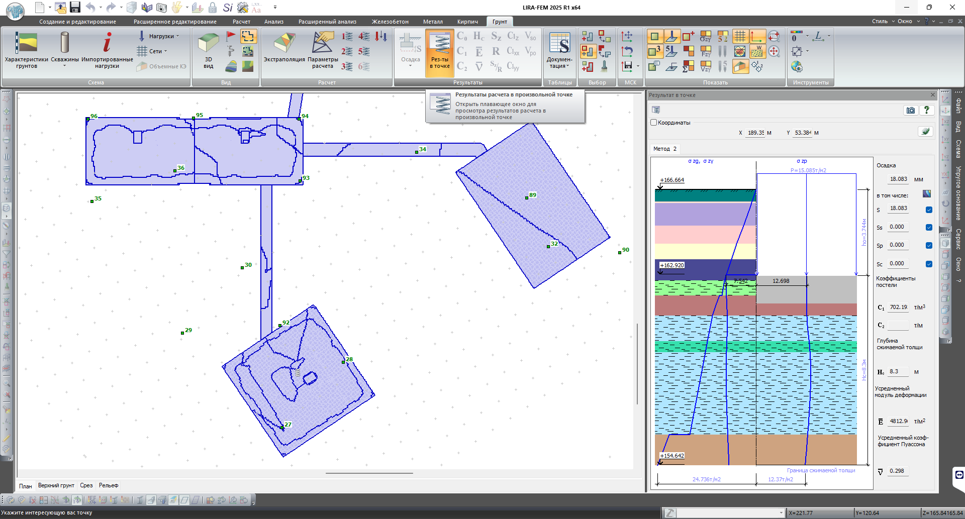
Реализован алгоритм вычисления значений осадок и напряжений в указанной точке модели грунта, без необходимости выполнения полного расчета. Что позволяет выполнить проверку и калибровку исходных данных перед длительным расчетом.
Добавлена возможность назначить очередность скважин в списке скважин.
Для скважин добавлена возможность задавать условное обозначение.
Добавлены мозаики веса и объема вынутого грунта для предварительной оценки затрат и объема выполнения работ по экскавации котлована.
Добавлена таблица, в которой выводятся параметры нагрузок (объем, площадь, вес вынутого грунта, а также значение средней нагрузки).
Добавлен флаг рисования Показать сеть триангуляции для построения мозаик.
Для контроля исходных данных добавлена мозаика групп и подгрупп нагрузок.
Грунт
-
Добавлен новый метод расчета коэффициентов постели (метод 6), который основывается на экспериментальных данных о скоростях распространения упругих волн в слоях грунта, расположенных ниже подошвы фундаментов. Реализован в соответствии с положениями НТП РК 08-01.2-2021. Подробности описаны в статье в Базе знаний.
-
Добавлен расчет несущей способности свай с учетом сейсмических воздействий в соответствии с разделом 11* СП РК 5.01-103-2013 (изм. 2021 года).
-
Добавлены исходные данные и алгоритм расчета для свай “Опоры ЛЭП”.
-
Корректировка выключения Fi (вклада в несущую способность по боковой поверхности) песчаного грунта над уширением для буровых/набивных свай:
- Если конус неучета сопротивления грунта по боковой поверхности сваи над уширением не прорезает (не касается) песчаного грунта, то он игнорируется (в предыдущих версиях/релизах, если ствол сваи по своей длине в любом месте пересекал песчаный грунт, то конус неучета Fi учитывался, что приводило к небольшому уменьшению несущей способности Fd);
- При расчете высоты этого конуса по СП РК 5.01-103-2013 при "сферической" форме уширения если задано dh < (db-D)/2, то теперь в расчете будет принято dh=(db-D)/2.
Построение конуса для неучета Fi над уширением сваи по СП РК 5.01-103-2013 -
Оптимизирована работа функции разбиения импортированных нагрузок на подгруппы нагрузок (требуется для корректного определения расчетного сопротивления грунта основания R для отдельных фундаментов) .
-
Для специфических грунтов (набухающие грунты) зона усадки Hsh (заданная в параметрах нагрузки) теперь отсчитывается всегда от поверхности рельефа (точнее от точки начала отсчета бытового давления грунта, т.е. если включена галка “Учитывать вес грунта выше отметки приложения нагрузки”, то Hsh будет считаться от поверхности рельефа). Таким образом, если зона усадки Hsh=5 м, а глубина заложения фундамента равна 2 метра, то глубина расчета усадки от высыхания набухающего грунта составит только 3 метра и только от суммарных напряжений под подошвой фундамента. И если заданная Hsh меньше глубины заложения фундамента, то осадка от усадки набухающего грунта будет нулевой. Подробное описание такого расчета приведено в Базе знаний.
-
Во всех вкладках специфических грунтов таблицы “Характеристики грунтов” добавлена сортировка по возрастанию значений P (давления) и относительных деформаций. Чтобы не было путанницы в расчете, нужно всегда стараться задавать эти данные в порядке возрастания.
-
Если параметры усадки набухающего грунта (давление-усадка) были заданы одной строкой (без строки 0=0), то теперь от нуля и до заданных величин параметры давление-усадка определяются линейной интерполяцией, а после этого значения принимаются константой. Ранее единственная заданная строка давление-усадка принималась константой для всех значений усадки от нуля (включая нулевые напряжения).
-
В случае, когда есть наложение нагрузок в плане с признаком “Результаты”, в диалоге "Результаты в точке" читается нагрузка верхняя - теперь нагрузки от свай для этого случая читаются по отметке головы сваи, т.е. вероятнее будут сверху), а раньше при приложении нагрузки.
-
Диалог "Результаты в точке" - в случае назначения таких цветов грунтов, на фоне которых не видны или плохо читаются эпюры и размеры, реализован контрастный цвет для эпюр и размеров.
-
На вкладку ленты Грунт в блок Инструменты добавлена кнопка Геометрия, которая вызывает меню для измерения расстояния, углов и площадей в системе Грунт (последняя вкладка меню “Определить для отмеченных” позволяет посчитать площади выделенных нагрузок).
Усовершенствования в системе Грунт
-
Реализован расчет коэффициентов упругого основания С1/С2 для наклонных плит и стержней.
-
Таблица характерик грунтов расширена данными о расчетных показателях для I и II ПС, с соответствующим раздельным учетом в расчетах несущей способности и деформаций (осадок). Доверительная вероятность α принимается равной 0,85 при расчетах оснований по деформациям и равной 0,95 при расчетах несущей способности оснований.
-
Реализован расчет жесткости свай для норм СП РК 5.01-103-2013.
-
В системе “ГРУНТ” добавлено определение малосжимаемого/недеформируемого грунта, при опирании на который сваю следует считать как стойку. В характеристиках грунта появился соответствующий признак.
-
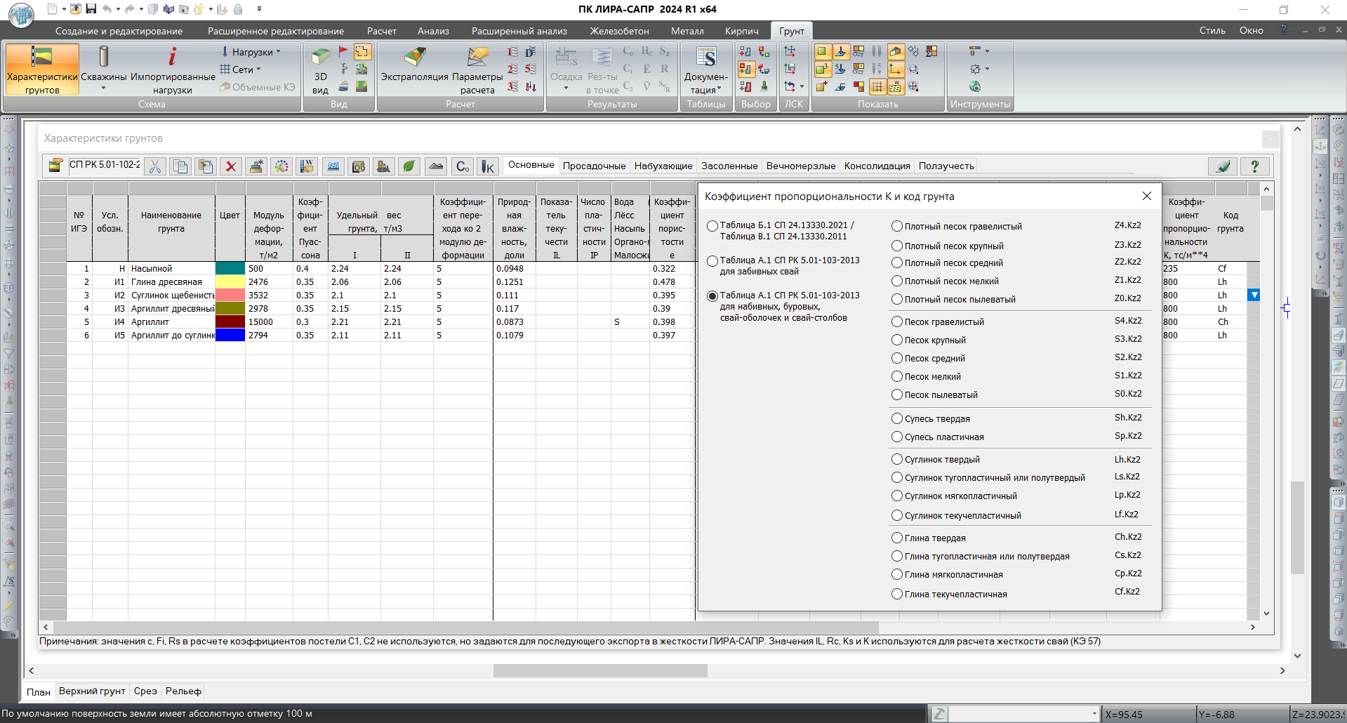
Изменен способ автоматического заполнения значений коэффициента пропорциональности, который используется для вычисления горизонтальной жесткости свай. В окне выбора необходимо указать интересующую таблицу.
-
Уточнен расчет несущей способности свай для супесей при числе пластичности Ip≤4.
-
Для свайных фундаментов опор мостов уточнено определение расчетного сопротивления грунта под нижним концом набивных и буровых свай, свай-оболочек.
-
Для построения модели условного свайного фундамента добавлена возможность выбрать дополнительные опции Rусл: h tg(Fi,II / 4) и h tg(Fi,II / 4) < 2D, здесь h и Fi,II – соответственно глубина погружения сваи и угол внутреннего трения. Для расчета по СП РК 5.01-103-2013 значение h tg(Fi,II / 4) принимается по умолчанию.
-
Реализована возможность задания уровня грунтовых вод через свойства скважин, как альтернатива ручного разделения свойств ИГЭ выше УГВ и ниже.
-
Добавлена опция, которая позволяет передавать активное давление на грунт Pz не на отметке середины плиты/оболочки, а на отметке подошвы.
-
Для всех методов расчета упругого основания предусмотрена возможность отказа от вычисления коэффициента С2. Данная опция доступна в настройках расчета системы ГРУНТ и диалога подключения модели грунта.
-
Реализован механизм автоматического разделения импортированных нагрузок не имеющих общих границ на подгруппы нагрузок. Например, для корректного определения расчетного сопротивления R отдельностоящих фундаментов.
-
Для удобства документирования исходных данных и результатов расчета в системе ГРУНТ добавлена подпись мозаик/изополей и видовых экранов.
-
Для мозаики расчетного сопротивления грунта R и др. при отображении результатов на срезе добавлен вывод информации об высотной отметки среза.
-
Добавлена возможность выбора величины коэффициента надежности по грунту на выдергивание для определения несущей способности свай (относительной).
Примечание. В ПК ЛИРА-САПР при расчете несущей способности свай (КЭ 57 как для одиночных свай, так и для свайных кустов с учетом взаимовлияния) вычисляется их несущая способность Fd (с учетом сейсмики)/ Fdu (без учета сейсмики).
-
Реализованы новые режимы мозаик для выполнения анализа несущей способности свай по результатам расчета:
- Мозаики несущей способности свай на сжатие/выдергивание с учетом сейсмики/без учета сейсмики (относительная);
- Мозаики нагрузки на сваю Qх/Qy/Q;
- Мозаики давления сваи на грунт по боковой поверхности σz,х/σz,y/σz
-
При расчёте некоторых специфических грунтов (просадочных, засоленных) и расчете консолидации теперь учитываются напряжения от веса вынутого грунта из котлована.
-
Уточнён поиск нижней границы просадочной зоны (точки пересечения суммарных напряжений и начального просадочного давления). В случае, если суммарные напряжения под подошвой фундамента ниже давления просадочности, - поиск потенциальной нижней границы просадочной зоны продолжается по всей высоте зоны осадки.
-
Уточнено определение напряжений от собственного веса для специфических грунтов, в случае когда нужно учитывать вес вынутого грунта из котлована.
-
Уточнен расчет набухающих грунтов, для которых теперь высота зоны усадки Hsh начинается от отметки планировки.
-
Реализована мозаика нагрузок с учетом наложения площадей нагрузок.
-
Добавлена возможность отображения характеристик подушки на поперечном разрезе.
-
В окне “Результат в точке” добавлено отображение высотной отметки по дну котлована и основанию условного фундамента.
-
Добавлен контроль при наложении нагрузок от вынутого грунта более чем на 0.5% площади. Ранее расчет запрещался при наложении более 1% площади нагрузок от вынутого грунта.
-
Для импортированной нагрузки добавлено отображение имени и пути связанного lir-файла, а также нагрузок импортируемых из файлов *.dxf и *.spf.
-
В свойствах нагрузки добавлена возможность задания комментария.
-
Добавлена сортировка подгрупп нагрузок.


















