Конструирование ЖБК
Система позволяет выполнить унификацию, конструирование и получить рабочие чертежи армирования, спецификацию арматуры, ведомость расхода стали и ведомость деталей для плит перекрытий, диафрагм, колонн, балок, свай и лестниц.
Конструирование ЖБК
Унификация плит и стен осуществляется в автоматизированном режиме на основе результатов расчёта армирования (выполненного в LIRA-FEM), представленных в виде изополей или мозаик площади арматуры. По результатам унификации пользователь сам назначает на все экземпляры унифицированный группы одну марку. На основе этой марки программа создает модель армирования.
Армирование плит
Для модели армирования плит автоматически создаётся основное (фоновое) армирование с обозначением и выноской. На основе мозаики армирования можно раположить участки дополнительного армирования с учётом длины анкеровки. С помощью мозаик недоармирования и переармирования можно оценить оптимальность раскладки.
Можно назначать загибы стержней вверх или вниз, отметить участки как обрезаемые по месту, добавить арматурные детали, заармировать зоны продавливания каркасами, а также усиливать края и проёмы плит. Доступно автоматическое создание размерных линий для габаритов участков армирования и для привязки участков армирования к сети координационных осей.
Автоматическая раскладка арматуры в плите
Инструмент автоматически формирует участки дополнительного армирования на основе мозаики армирования. При этом используется сохранённый набор типоразмеров, в который входят:
- диаметр арматурных стержней;
- шаг между стержнями;
- размеры сетки (B × H).
Арматурные выпуски из фундаментной плиты
Арматурные выпуски из фундаментной плиты в автоматизированном режиме создаются на основе результатов конструирования вертикальных железобетонных элементов (колонн и стен), опирающихся на эти плиты. В автоматическом режиме можно создать спецификации на арматурные детали выпусков, а также сформировать чертежи с изображениями узлов и их отметкой на плане фундаментной плиты.
Армирование стен
Для модели армирования стен автоматически создаются вертикальные и горизонтальные арматурные стержни с выпусками и необходимой длиной нахлеста. Зоны армирования обозначаются марками. Существует возможность выполнить продольный или поперечный разрез по стене, а также в автоматизированном режиме выполнить усиление проема или края стены.
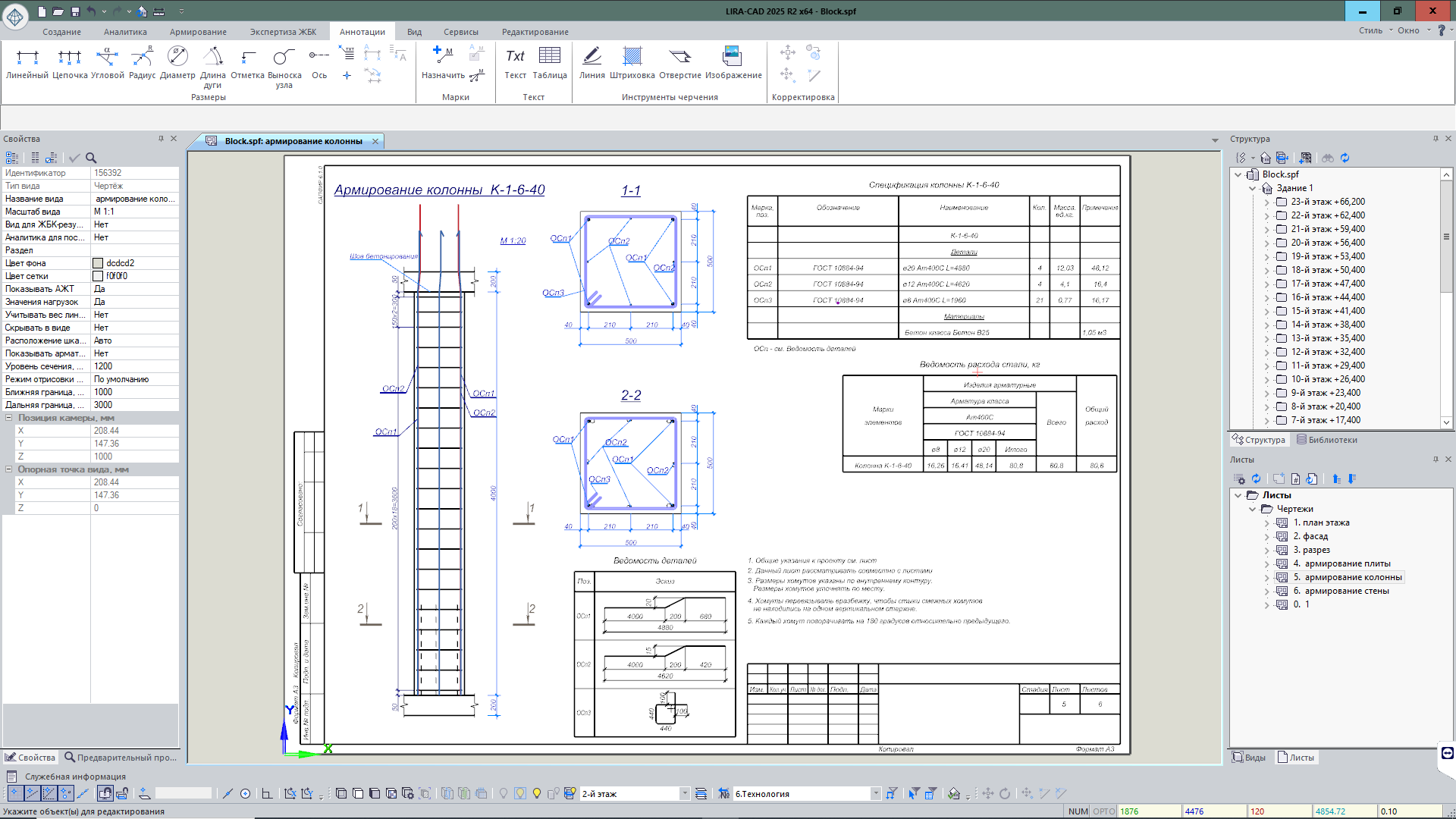
Армирование колонн
Армирование колонн выполняется на основе данных унификации. В таблице унификации колонны автоматически сортируются по убыванию процента и площади армирования, позволяя инженеру сразу видеть оптимальные решения.
На основе результатов симметричного армирования пользователь может легко сформировать типы армирования для групп колонн с близкой интенсивностью. Каждый тип содержит диаметр арматурных стержней и их расположение в сечении колонны.
Далее программа в автоматическом режиме маркирует колонны по созданным типам. При генерации модели армирования программа создает продольный и поперечный разрезы, а также самостоятельно расставляет продольную и поперечную арматуру — экономя время и исключая ручные ошибки.
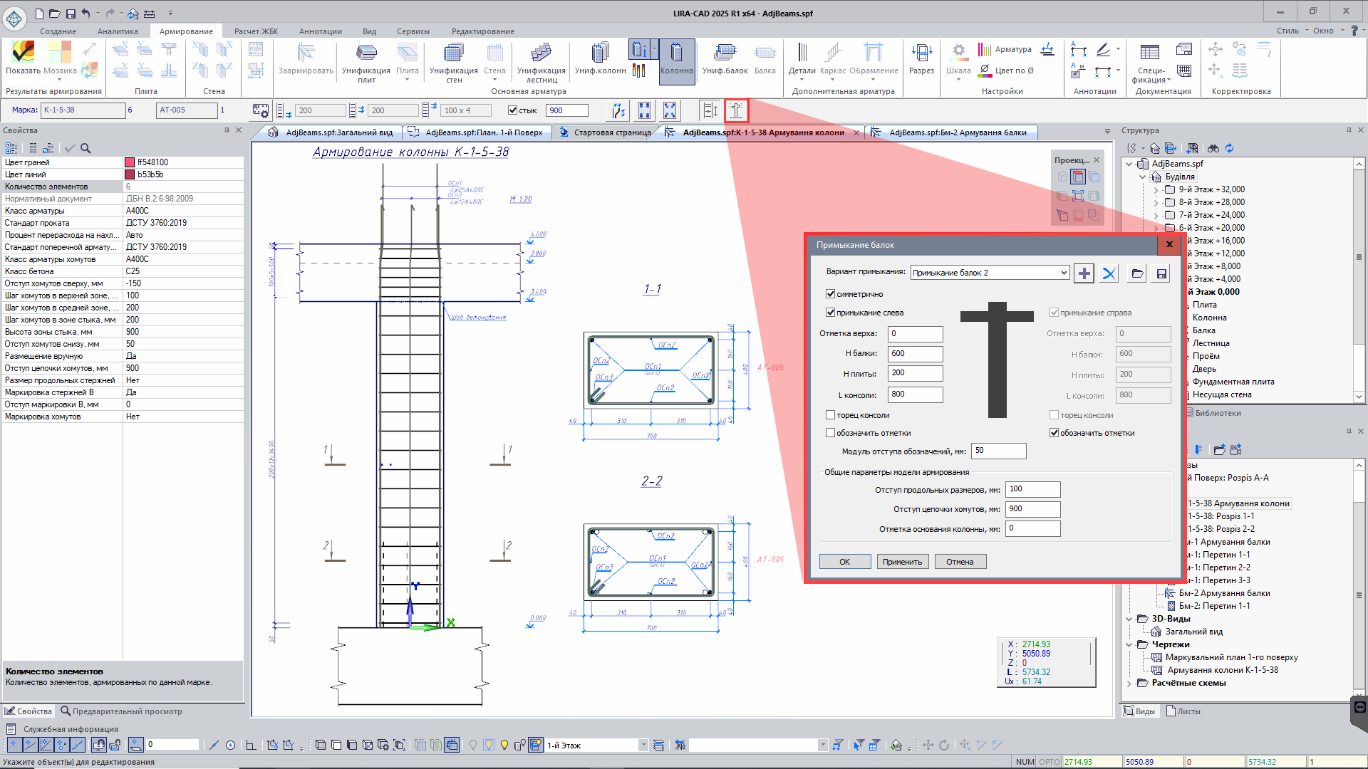
Примыкания балок
Армирование балок
Армирование балок выполняется на основе данных унификации. На основе огибающей эпюры продольного и поперечного армирования (полученной по результатам расчета в LIRA-FEM), инженер выделяет балки с похожей картиной армирования и назначает им одну марку.
Армирование лестниц
Армирование прямых и П-образных лестниц в программе выполняется на основе унификации. Конструирование осуществляется в автоматизированном режиме — формируется вид армирования с продольным разрезом марша, на котором уже отображена основная продольная рабочая и вспомогательная арматура. Программа автоматически создаёт рабочий чертёж армирования со спецификацией, ведомостью деталей и ведомостью расхода стали, избавляя пользователя от рутинных операций и ускоряя выпуск проектной документации.
Учет заданного армирования при расчёте реконструкции или нелинейном расчете
В системе Конструирование ЖБК реализовано автоматическое формирование типов заданного армирования (ТЗА) и назначение их на элементы расчетной схемы по результатам конструирования плит, стен, колонн и балок. Таким образом можно задать данные для расчета реконструкции или для нелинейного расчета.
Предварительная оценка расхода арматуры
С помощью инструмента “Ведомость арматуры” можно получить детализированный расход арматурной стали по диаметрам и расход объёма бетона еще на ранних этапах проектирования. При вычислении суммарного объема бетона учитываются реальные размеры конструкций и взаимное пересечение элементов, а для суммарного объема арматуры можно выбрать представление расхода в весе или длине.
Автоматическое формирование чертежей
Для любого законструированного объекта (плита, стена, колонна, балка, свая, лестница) в автоматизированном режиме создается чертеж со спецификацией арматуры, ведомостью расхода стали, ведомостью деталей и автопримечаниями. С помощью инструмента Основные надписи можно добавить на чертеж рамку и штампик с заполненной информацией.
Экспорт в DWG
Любой чертеж, сформированный в системе Конструирование ЖБК— армирование объекта, опалубка плиты перекрытия или план расположения элементов — можно экспортировать в DWG-формат.
При экспорте:
- все объекты (стены, плиты, колонны, балки, сваи, фермы, проёмы, окна, двери, лестницы, оси и др.) автоматически попадают на свои слои по типу;
- таблицы, размеры, выноски, штриховки и линии становятся «родными» объектами DWG;
- сохраняются стили текста, линий, размеров, выносок и таблиц.
Благодаря этому чертеж в DWG выглядит так же, как и в LIRA-CAD.
Оцените возможности
Если у вас все еще есть сомнения, загрузите демонстрационную версию и попробуйте или свяжитесь с нашей службой поддержки для получения более подробной информации.














