История версий
LIRA-FEM
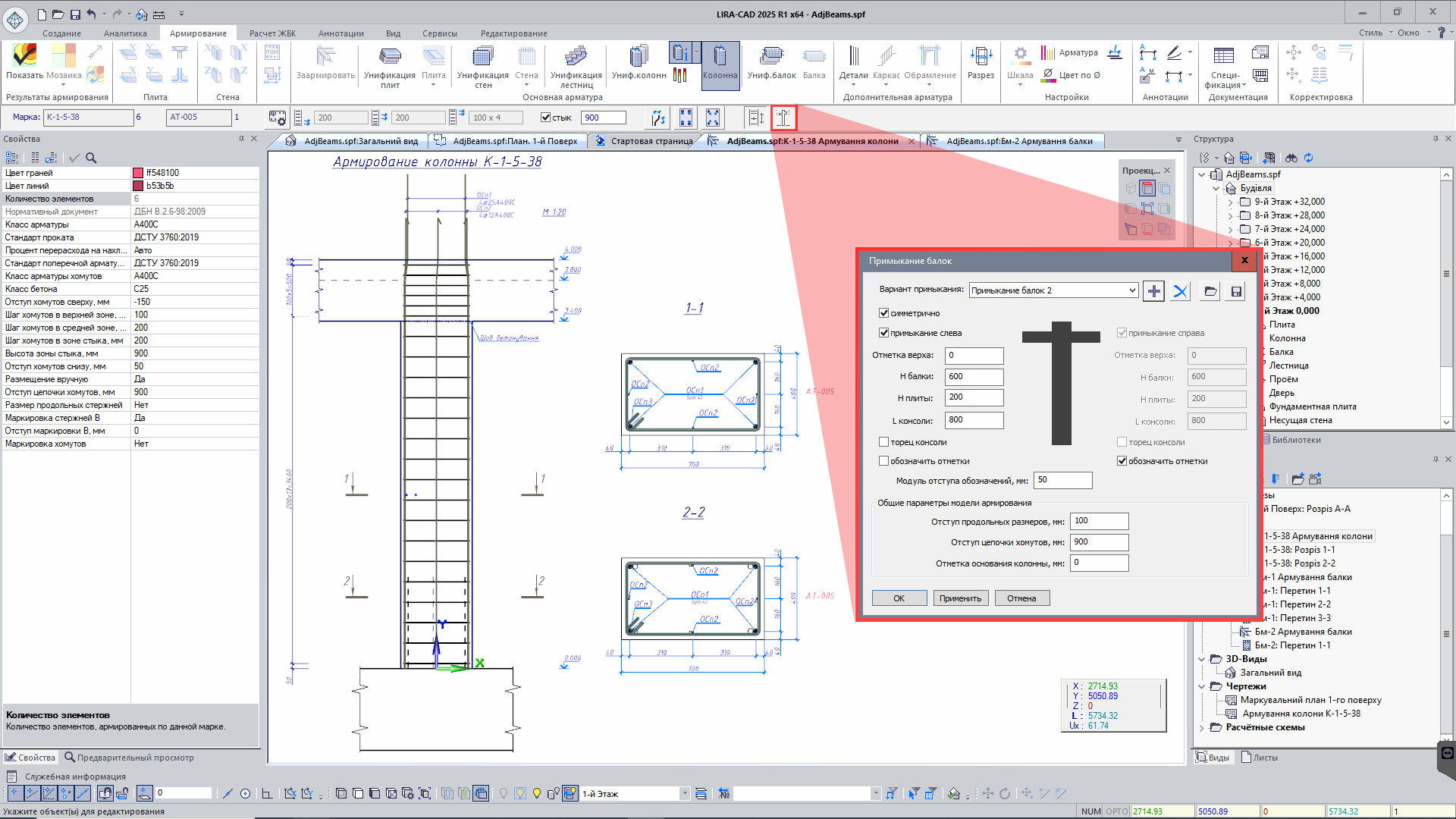
Инструмент для детальной проработки чертежей колонн с примыкающими балками
Инструмент для детальной проработки чертежей колонн с примыкающими балками (диалоговое окно Примыкание балок) дает возможность редактировать и настраивать параметры отображения примыканий балок и плит к колонне на чертеже армирования.
Ключевые функции:
Управление примыканиями: Диалоговое окно позволяет указать отметки верхних граней примыкающих элементов, толщину плит и балок, а также габариты консольной части в случае отсутствия продолжения горизонтальных элементов. При симметричных примыканиях можно установить флажок «Симметрично», чтобы задать параметры один раз и применить их к обеим сторонам.
Настройка вертикального разреза:
- Регулировка расположения размерных линий с учетом примыкающих балок и плит для формирования корректной вертикальной размерной цепочки.
- Установка отступов для размерной цепочки хомутов, продольных размеров и отметок основания колонны.
- Введение альтернативного способа маркировки продольных стержней и хомутов для удобства оформления.
Гибкость и эффективность:
Все настройки можно сохранить в виде пресета, который легко использовать в текущем или будущих проектах. Это позволяет значительно ускорить создание качественных чертежей с точными параметрами примыканий, минимизируя ошибки и оптимизируя рабочий процесс. Инструмент улучшает скорость и удобство работы, предоставляя возможность многократно применять заранее настроенные параметры, экономя время и обеспечивая высокое качество проектирования.


