ЛИРА-САПР 2021 R1 Release Notes

Сервер расчетов; итерационные КЭ; расширение возможностей набора конвертеров; усовершенствованная триангуляция; технология API; вычисление осадок и коэффициентов постели для насыпных, просадочных, набухающих, засоленных, вечномерзлых грунтов; напряжения в узлах; послойный экспорт в Autocad; расчет на сейсмограммы; расчет по нормам СП РК EN

Изменено: 18 января, 2024

Сервер расчетов

Первый шаг к "Облачным технологиям" в ЛИРА-САПР. Приложение выполняет расчет задач ЛИРА-САПР на специально выделенных компьютерах локальной сети. Во время расчета на сервере специалист может продолжать работу на своей рабочей станции, что позволяет компании максимально эффективно использовать лицензии и вычислительные мощности.

Технология работы

  • подготовка расчетной модели на рабочей станции клиента;
  • постановка файлов задач в “очередь” (отправка на сервер расчетов);
  • расчет модели на выделенном сервере (LAN);
  • по завершению процесса расчета возврат результатов (по опции);
  • анализ результатов

Возможности интерфейса пользователя

  • настройка места для хранения результатов расчета, это может быть выделенное место во внутренней сети или облачные сервисы для хранения данных;
  • отслеживание и получение push-уведомлений о ходе расчета;
  • пользователям - управление своими задачами в очереди;
  • администраторам - управление всей очередью задач.
Подготовка модели к расчету на сервере
Подготовка модели к расчету на сервере
Сервер расчетов ПК ЛИРА-САПР 2021
Сервер расчетов ПК ЛИРА-САПР 2021

Расчет по нормам СП РК EN (Республика Казахстан)

  • В редакторе загружений добавлена возможность работать с видами нагрузок в соответствии с действующими нормами РК.
  • Добавлен новый инструмент формирования комбинаций сочетаний нагрузок в соответствии с положениями СП РК EN 1990:2002+A1:2005/2011 и национальным приложением (НП).
  • Добавлены подвиды временных загружений для реализации разных коэффициентов сочетаний в соответствии с разными категориями помещений.
  • Заполнены умолчания в соответствии с выбранной группой расчета (А, В, С).
  • Описаны правила создания комбинаций (формулы 6.10 – 6.16).
  • Добавлены временные нагрузки типа “кран” и “тормоз".
  • Добавлена возможность проверки на заданное армирование для норм СП РК EN 1992-1-1:2004/2011.
  • Для норм СП РК EN 1992-1-1:2004/2011 добавлен новый тип расчета “наклонная балка”.
  • Добавлен инструмент формирования начальных несовершенств для моделирования эффектов 1-го рода (отклонения при монтаже и локальных несовершенствах).
  • Формирование начальных несовершенств в расчетной модели

    Формирование начальных несовершенств в расчетной модели
  • Реализованы положения СП РК EN 1993-1-1:2005/2011 и НП РК (сплошные сечения).
  • Реализован учет свободного и стесненного кручения при расчете стальных сечений в соответствии с EN 1993-1-1:2005/AC:2009 и также СП РК EN 1993-1-1:2005/2011.
  • Добавлена новая мозаика результатов “Класс сечения” для норм EN 1993-1-1:2005/AC:2009 и EN 1993-1-1:2005/2011.
  • Для норм EN 1993-1-1:2005/2011 добавлена возможность управления комбинациями РСН, которые будут использоваться при подборе сечений на эксплуатационную пригодность.

Интероперабельность – компоненты технологии BIM

IFC

  • Реализован импорт аналитической модели IFC.
  • Усовершенствован импорт IFC, а именно:
    • добавлена возможность выполнить импорт капителей;
    • добавлена опция “импортировать архитектурные объекты” (данная опция позволяет импортировать элементы, которые можно использовать в качестве нагрузки, для создания проемов под вентканалы и др.);
    • в свойствах объекта добавлен параметр, отображающий какому классу IFC принадлежит импортированный объект;
    • добавлена группа параметров, которая отображает свойства объекта IFC;
    • при импорте новое здание добавляется на слой, соответствующий наименованию файла IFC (таким образом можно удобно скрывать/отображать секции (здания), если модель состоит из нескольких секций, размещенных в одном проекте).
    • реализован импорт IFC файлов, в которых не созданы этажи (в предыдущих версиях программы такие файлы не импортировались).

    Импорт IFC

    Импорт IFC
  • В ноде "Импорт IFC", при обновлении модели из файла IFC, реализовано сравнение объектов по типу и геометрии. Это сделано в дополнение к существующему сравнению по IFC идентификаторам. Таким образом можно определить изменения, выполненные в IFC файле.
  • Также были добавлены следующие режимы отображения модели:

    • “основная модель”;
    • “показывать результаты сравнения объектов” (отображаются все изменения которые были выполнены в IFC файле: добавленные, измененные и удаленные объекты),
    • “показывать объекты, обозначенные как “неиспользуемые”” (т.е. те объекты, которые удалены в IFC файле).
  • В объекты модели добавлено новое свойство “Удаленный IFC объект”. Это свойство устанавливает специальный признак тем объектам, которых больше нет в IFC файле. Такие объекты не попадают в расчетную модель. На основе этого признака можно принять решение оставлять ли такие объекты в SPF файле или нет.
  • Для импорта модели из Revit или Tekla одновременно через IFC и LiraKM файлы создана опция “Подстроить физическую модель под аналитическую”, которая позволяет разместить аналитическую модель Revit в пределах физической модели САПФИР, а также распознать стальные сечения колонн и балок в физической модели САПФИР.
  • Доработан экспорт модели IFC.

SAF

  • Расширен импорт SAF, а именно:
    • реализован импорт таблиц типов нагрузок, загружений, расчетных сочетаний нагрузок (РСН), сосредоточенных сил, сосредоточенных сил по объектам, линейных нагрузок, линейных нагрузок по объектам, нагрузок по площади, нагрузок по площади по объектам и моментов;
    • создана группа параметров, которая отображает все свойства импортированных объектов SAF. Такая группа параметров может быть экспортирована в SAF, даже если параметры не использовались в САПФИР.

    Импорт SAF (Structural Analysis Format)

    Импорт SAF (Structural Analysis Format)
  • Добавлен обновляемый нод “Импорт SAF”.

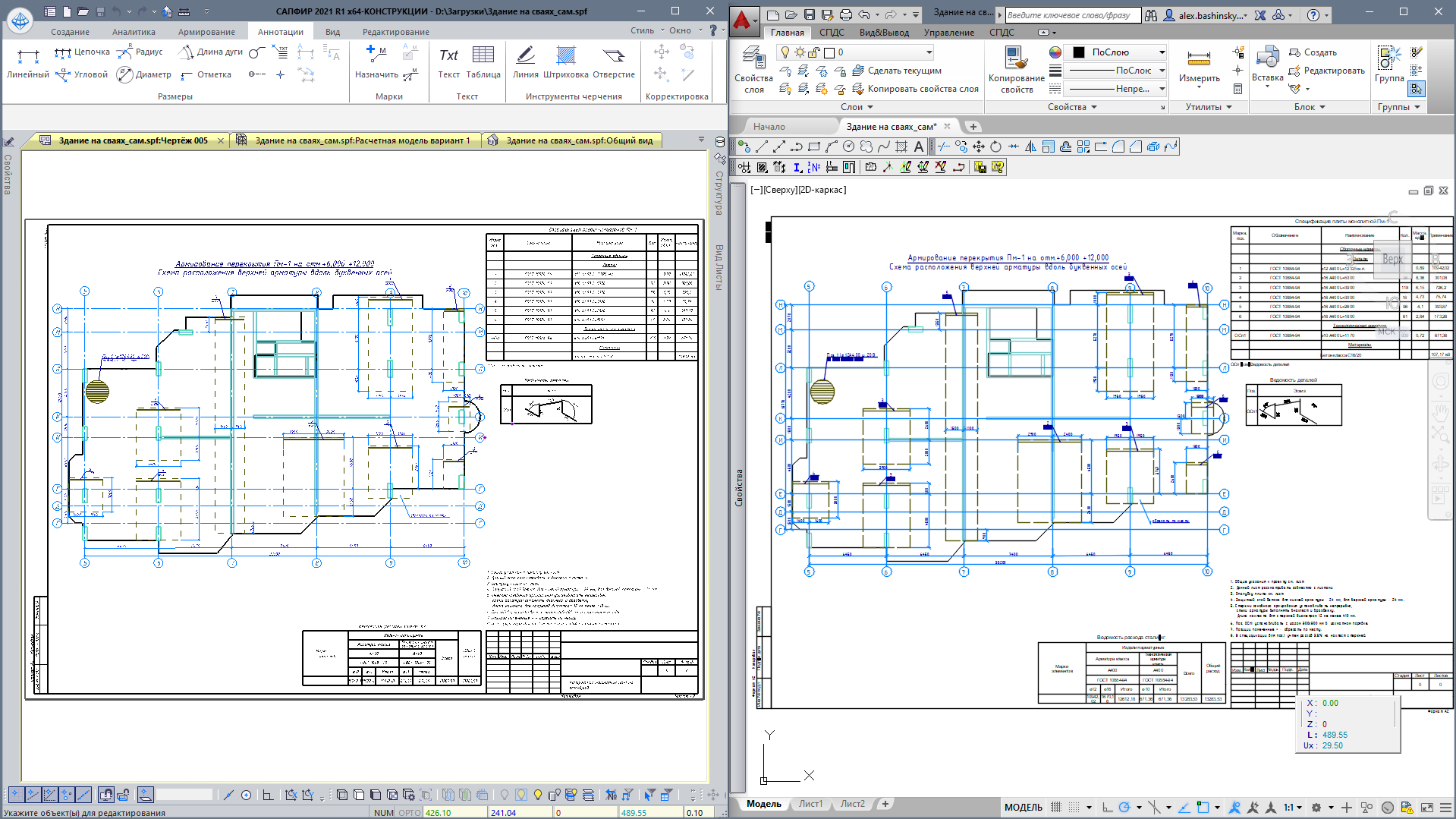
DWG

  • Реализован экспорт чертежей в DWG формат. Чертеж, сформированный в программе САПФИР, будь то армирование колонны, опалубочный чертеж плиты перекрытия или план расположения элементов можно экспортировать в DWG формат.
  • При экспорте чертежей были учтены все основные особенности, которые встречаются у пользователя при работе с плоскими чертежами в данном формате:

    • все объекты, которые присутствуют на чертеже (стены, плиты, колонны, балки, сваи, фермы, проемы, окна, двери, лестницы, оси и др.), размещены на соответствующих слоях, которые отвечают типу объекта;
    • таблицы, размеры, выноски, штриховки и типы линий экспортируются в нативные объекты DWG формата;
    • разработаны необходимые стили для объектов текст, линия, размер, мультивыноска, таблица. Данные стили позволяют отобразить чертеж DWG в точности таким же как чертеж, созданный в САПФИР.

    Экспорт в DWG

    Экспорт в DWG
  • Реализован следующий набор экспорта чертежей в DWG формат:
    • армирование плит;
    • армирование фундаментных плит;
    • армирование стен;
    • армирование колонн;
    • армирование балок;
    • армирование лестниц;
    • армирование свай;
    • чертежи армирования узлов (арматурные выпуски из фундаментных плит, поперечная арматура в зоне продавливания);
    • чертежи плоских арматурных каркасов (КЖИ);
    • опалубочные чертежи с расположением закладных деталей;
    • чертежи расположения элементов каркаса в плане и на разрезах.
  • При экспорте, все табличные данные САПФИР преобразуются в нативные таблицы формата DWG, а именно:
    • ведомость рабочих чертежей комплекта;
    • спецификация арматурных изделий в плитах, стенах, колоннах, балках, сваях, лестницах;
    • ведомость деталей;
    • ведомость расхода стали;
    • спецификация на каркас - чертеж КЖИ;
    • спецификация арматурных изделий на выпуски;
    • штампы оформления листа (формы: 3, 4, 5, 6);
    • спецификация к схеме размещения железобетонных конструкций;
    • спецификация к схеме размещения арматурных выпусков;
    • ведомость основных материалов железобетонных конструкций;
    • ведомость спецификации элементов в модели;
    • ведомость колонн, балок, стен, плит, отверстий, окон, дверей, свай, крыш;
    • ведомость элементов по этажам;
    • ведомость материалов;
    • ведомость материалов по этажам;
    • ведомость Stonelight;
    • спецификация стального проката.
  • Весь данный функционал дает возможность легко экспортировать чертежи и удобно работать с ними в программах, которые поддерживают формат DWG.

Единая интуитивная графическая среда пользователя

  • Для норм СП 20.13330.2016 добавлен новый вид нагрузки - “Прогрессирующее обрушение”, который используется при формировании комбинаций для РСУ и РСН.

  • Добавлена возможность работы с нормативными значениями нагрузок в расчетной модели. Выбор нагрузок расчетные/нормативные выполняется на уровне настроек признака схемы. Данная настройка определяет правила формирования комбинаций нагрузок для РСУ/РСН.

Настройка значений нагрузок в расчетной модели.png

Настройка значений нагрузок в расчетной модели
  • Реализована возможность отображения расчетной модели с показом назначенных сечений "в теле" в основном окне на базе технологии DirectX.

DirectX- отображение с учетом назначенных сечений.png

DirectX- отображение с показом назначенных сечений "в теле"
  • Реализована возможность синхронизации вида расчетных схем при просмотре результатов в многооконном режиме. Данная опция повышает удобство анализа результатов при сравнении данных для разных задач и вариантов конструирования.

  • Добавлена возможность сравнения результатов конструирования (по вариантам) и построения мозаики отличия в %.

Сравнение результатов конструирования с варьированием класса арматуры.png

Сравнение результатов конструирования с варьированием класса арматуры (1й вариант- А 500, 2й вариант- А 400)
  • Редактор загружений теперь может поддерживать работу с видами нагрузок для всего перечня нормативов, доступных в программном комплексе. В предыдущих версиях виды нагрузок наследовались только из нормативов СНиП 2.01.07-85*, СП 20.13330.2016 и ДБН В.1.2 - 2:2006.

Новые возможности редактора загружений.png

Новые возможности редактора загружений
  • Результаты расчета конструирования стальных конструкций расширены результатами для анализа нового типа элемента “универсальный стержень”.

  • Добавлена мозаика максимальных значений (огибающая) для всех проверок назначенных и подобранных сечений СТК.

  • Для функции корректировки сети пластинчатых КЭ добавлена возможность работы только для выделенных элементов.

  • Добавлена возможность сохранения настроек пользователя всех этапов расчета.

  • Для узлов добавлен новый признак “не сшивать”, который позволяет исключить узлы при выполнении упаковки схемы.

  • Завершена адаптация интерфейса для работы на 4К мониторах для системы ГРУНТ, а также проектирующих систем железобетонных и стальных конструкций.

  • Для задач динамики во времени добавлен новый вид нагрузки “Сейсмограмма”.

  • Для моделирования нелинейных загружений добавлена возможность копирования историй.

  • Добавлена возможность экспорта txt-файла задачи огнестойкости (расчетное сечение) для дальнейшего импорта в задачу теплопроводности.

Создание txt-файла задачи теплопроводности на основе параметров задачи огнестойкости.png

Создание txt-файла задачи теплопроводности на основе параметров задачи огнестойкости
  • Для удобства чтения результатов проверки заданного армирования создана специальная шкала с разными цветовыми гаммами для диапазонов >1 и <1, добавлена возможность цветовой настройки шкалы с контрастной сменой цветов.

  • Для анализа площадей армирования в пластинчатых элементах добавлен режим вывода максимальной площади верх/низ по каждому направлению Х и Y.

Площадь полной арматуры на 1 п.м. по оси Х максимальная у верхней и нижней грани.png

Площадь полной арматуры на 1 п.м. по оси Х: а)максимальная у верхней и нижней грани; б)у верхней грани; в)у нижней грани
  • Добавлен режим суммарной площади заданного армирования в пластинах по направлению Х и Y для нижней и верхней граней.

  • Реализована возможность расчета РСУ для отмеченных элементов схемы, что позволяет экономить время для локальных расчетов.

  • Добавлены новые таблицы ввода “Местные оси объемных КЭ” и “Оси ортотропии” (пластинчатые и объемные КЭ).

  • Снято ограничение на количество экспортируемых нагрузок в “ФОК Комплекс” (разрешено до 1000 комбинаций на каждый типоразмер столбчатого фундамента и на каждый участок ленточного фундамента), предусмотрены новые варианты закрепления узлов фундаментов при передаче нагрузок в “ФОК Комплекс” (кроме полного защемления узлов, единственно необходимого ранее, допускаются упругие связи, моделируемые полным набором КЭ 51 или одним КЭ 56, а также возможно опирание вертикальных элементов на горизонтальные стержни или пластины на упругом основании с заданным C1).

  • Добавлены новые изополя напряжений (в том числе главных и эквивалентных напряжений), с учетом вычисленных усилий в узлах пластинчатых КЭ.

  • Информация об узлах и элементах расчетной схемы (фонарик) обновлена и дополнена информационными вкладками, описывающими исходные данные и результаты новых реализованных видов расчетов.

  • В диалоговом окне КоБ добавлена информация о количестве элементов входящих в конструктивный блок.

  • При сборке схемы выполняется перенос имен загружений в базовую задачу.

  • Добавлена возможность структурировать материалы конструирования “Ж/б” и “Сталь” с помощью команд “Переместить вверх” и “Переместить вниз”.

  • Добавлена возможность управления коэффициентом масштабирования модели при использовании команды “ZOOM”.

  • Добавлена возможность настройки горячих клавиш для команд выбора информации, изображаемой непосредственно на схеме, а также установки опций отображения расчетной схемы.

  • Добавлен режим просмотра, при котором на схеме скрывается числовое и векторное представление флагов рисования.

  • Улучшена визуализация размеров на проекции (автоматическая настройка расположения подписей вдоль или перпендикулярно линии).

  • Добавлена возможность настройки норм выбранных по умолчанию для расчета коэффициентов упругого основания.

Препроцессор САПФИР-конструкции

  • Реализовано отображение местных осей колонн, балок, плит и стен. Для изменения направления местных осей объектов без перестроения объекта добавлена возможность инвертировать направление стен и балок. Для местных осей плит можно задать направление согласования осей, повернув маркер местных осей на необходимый угол.
  • Разработаны новые инструменты управления местными осями пружин (КЭ 55).
  • Добавлена возможность непосредственно в САПФИР задать параметры, необходимые для расчета теоретической несущей способности свайного основания по модели грунта. Также стало возможным выполнить вычитание одного массива свай из другого и создать проем в массиве свай.
  • Усовершенствован инструмент “Пространство”:
    • добавлена возможность выбрать загружение для нагрузки от пространства;
    • добавлена опция “Пол”, благодаря которой можно задать конструкцию пола в пределах пространства. Пол затем будет преобразован в равномерно-распределенную нагрузку с автоматическим вычислением величины этой нагрузки.

Формирование нагрузки от пола в свойствах Пространства.png

Формирование нагрузки от пола в свойствах Пространства

  • Реализовано задание удельного веса для окон и дверей. Нагрузка от стеклопакета, металлопрофиля или дверного полотна может опционально прикладываться двумя способами: в виде сосредоточенных сил по краям оконного/дверного проема или в виде линейной нагрузки вдоль проема.

Задание удельного веса стеклопакета в свойствах проема.png

Задание удельного веса стеклопакета в свойствах проема

  • Для нагрузок, распределенных по площади, расширены инструменты булевых операций: объединение, вычитание, рассечение по линии.
  • Разработаны инструменты для создания линий триангуляции в прямолинейных сегментах стен. На линии триангуляции в стенах (подобъекты) расширены инструменты корректировки (перемещение, копирование, тиражирование при помощи массива).

Линии триангуляции для стен.png

Линии триангуляции для стен

  • Реализована возможность создать область триангуляции произвольного контура для плит. Внутри такой области триангуляции можно задать шаг триангуляции, который будет отличаться от шага триангуляции основной плиты. Также такой области триангуляции может быть задана индивидуальная ориентация местных осей.
  • В дополнение к автоматизированному формированию точек триангуляции над опорами колонн, добавлена возможность в автоматизированном режиме формировать области триангуляции над стенами. Для выделенных стен формируются области триангуляции путем задания отступов от стены в 4 стороны. Для созданных областей триангуляции можно отобразить местные оси. Еще на этапе физической модели, в свойствах маркера местных осей, можно задать индивидуальный шаг триангуляции для такой области, а также угол согласования осей.
  • Добавлен функционал для сглаживания треугольной и четырехугольной конечно элементной сетки. Разработанный алгоритм позволяет улучшить форму конечных элементов благодаря перемещению узлов для повышения качества формы примыкающих к узлу элементов. Также объединения треугольных элементов, что увеличит количество четырехугольных элементов. Улучшение качества триангуляции позволяет уменьшить всплеск напряжений и соответственно арматуры в расчетной схеме.
Триангуляция с учетом сглаживания
Триангуляция с учетом сглаживания
Триангуляция с учетом сглаживания
Сглаживание триангуляционной сети
  • Реализована возможность выполнять копирование нескольких объектов, расположенных на различных этажах.
  • Добавлена функция “Рассечения объектов уровнями этажей”, которая позволяет рассечь по уровням этажей стены, колонны и балки, созданные высотой на несколько этажей. В результате рассечения формируются отдельные объекты и размещаются на соответствующие этажи.
  • Усовершенствован инструмент “Наклонная плита”:
    • добавлена возможность выполнить задание граничных условий и условий опирания на грани плиты;
    • добавлена возможность задать нагрузки (постоянные, длительные, кратковременные) на наклонную плиту с указанием загружения для каждого типа нагрузки;
    • добавлен способ построения наклонной плиты - со свободной привязкой.
  • В свойства проекта вынесены допуски, которые ранее были предопределены в программе:
    • коэффициент выравнивания плит по стенам;
    • ближайший аналитический уровень (допуск на формирование жестких вставок для плит, допуск дотягивания стен до плит);
    • минимальная и максимальная длины стыков;
    • минимальная высота платформенных элементов;
    • зона обнаружения панелей при автоматическом формировании стыков;
    • максимальный зазор между панелями при подборе схемы стыка.
  • Добавлена возможность назначить на колонны или балки жесткость КЭ 309 - геометрически нелинейного универсального пространственного сильно изгибаемого стержневого КЭ. Жесткость КЭ 309 может вычисляться автоматически исходя из характеристик объекта. Любая из характеристик жесткости может быть занижена или завышена через коэффициенты к жесткостям. Также жесткостные характеристики объекта могут быть заданы вручную.
  • Добавлено задание расчетных характеристик для проверки и/или подбора металлических сечений ферм.
  • Для балочной системы реализована возможность установить параметр Ручное редактирование. Это позволяет назначить на отдельные объекты балочной системы индивидуальные значения параметров или задать нескольким балкам индивидуальный шаг размещения.
  • Реализовано задание шарниров в терминах шарниров ВИЗОР-САПР. Под шарниром подразумевается снятие или ограничение жесткости связи одного из концов стержня с узлом схемы. Шарнир может быть установлен в начале и/или в конце стержня по какой-либо степени свободы в местной системе координат этого стержня. Допускается вводить как угловые (вокруг осей UX1, UY1, UZ1), так и линейные (вдоль осей X1, Y1, Z1) шарниры, а также снимать связь W – разрешать свободную депланацию поперечных сечений концов стержней.

Задание шарниров для стержней.png

Задание шарниров для стержней

  • В Настройки САПФИР добавлена настройка слоя по умолчанию, на котором будет располагаться объект при создании. Выполняется формирование нового слоя по типу создаваемого объекта: слой колонн, слой стен, слой балок и т.д.
  • Реализовано отображение модели и расчетной схемы в цвете согласно типу объекта, в случайных цветах, в цветах материалов и в цветах жесткостей. Такое цветовое отображение передается в ВИЗОР-САПР в качестве цветов конструктивных блоков (цвет по типу объекта и цвет по материалу) или в качестве цветов жесткостей.

МКЭ модель в цвете.png

МКЭ модель в цветах жесткостей

  • Обновлён фильтр по параметрам объектов, добавлены все объекты в фильтр и все параметры, которые есть у этих объектов. Реализовано выделение подобъектов (точек/линий триангуляции, маркеров местной системы координат, контуров продавливания) по различным критериям.
  • В рамках фильтра по параметрам реализовано цветовое отображение характеристик объектов. Можно выбрать любую из характеристик (толщины, поперечные сечения, материалы, тип КЭ, опирание и др.) и вывести в цветовой интерпретации диапазон значений выбранного параметра.

Мозаика назначенных условий опирания.png

Мозаика назначенных условий опирания

  • В свойства объектов (балок, колонн, плит, стен) добавлено задание опирания "Объединение перемещений по X и Y” и “Пользовательское объединение перемещений”, в котором можно указать по каким направлениям выполнять объединение.
  • Разработан инструмент, позволяющий в виде сводной таблицы отобразить все элементы стального сечения в модели. Для стальных конструкций отображается марка элемента, наименование объекта, назначенное поперечное сечение, длина и масса. Элементы можно отфильтровать по этажу, слою, типу объектов, а также сформировать сводную таблицу только для выделенных элементов. После расчета можно выполнить импорт результатов проверенных и подобранных сечений из ВИЗОР-САПР в САПФИР. В результате импорта отобразятся профили, для которых была выполнена проверка в ВИЗОР-САПР, результаты проверки по 1ПС, 2ПС и МУ. Также профили, которые были подобраны в ВИЗОР-САПР и результаты подбора по 1ПС, 2ПС и МУ. Профили, выделенные в списке, можно заменить на подобранные.
  • Реализована спецификация металлопроката для контроля теоретического расхода стали (металлопроката) на элементы металлических конструкций. Спецификация содержит наименование профиля, наименование или марку металла, номер или размеры профиля, массу металла по элементам конструкции, общую массу, суммарную длину и количество элементов того или иного типоразмера. Можно сформировать спецификацию элементов по этажам, типам объектов (колонны, балки, фермы, балочные системы), а также по выделенным элементам.
  • Создан калькулятор суммарных нагрузок, позволяющий получить информацию о всех нагрузках, заданных в проекте. Информация представлена сводной таблицей в виде суммы проекций нагрузок на координатные оси в глобальной системе координат. Сводную таблицу можно отфильтровать по этажам, загружениям, слоям моделирования и выделенным элементам. Информацию по нагрузкам можно получить как в физической модели, так и в расчетной модели.
  • Создана таблица “Данные о проекте огнезащиты”, в которой собрана сводная информация о сечениях, используемых в проекте, класс огнестойкости этих сечений, площадь сечения, периметр, приведенная толщина, а также критическая температура сечения.
  • В дополнение к уже существующим динамикам реализовано задание исходных данных для следующих динамических воздействий: модальный анализ (100), 3-х компонентная акселерограмма (29) и Сейсмическое (ответ-спектр) - (41). Для существующих динамик в САПФИР добавлен номер динамического воздействия, принятый в ВИЗОР-САПР.

Задание исходных данных для динамики.png

Задание исходных данных для динамики

  • В дополнение к алгоритму сбора ветровой нагрузки добавлена возможность табличного задания ветрового давления. При задании ветрового давления и высотной отметки автоматически вычисляется соответствующая этому давлению скорость ветра. Если задать скорость ветра и высотные отметки - автоматически вычисляется ветровое давление. Вычисленные значения прикладываются в виде нагрузки к элементам расчетной схемы в зависимости от выбранного способа приложения (на стены, в торцы плит перекрытий). Можно выполнить расчет ветровой нагрузки, задав максимальную высоту здания, ширину здания перпендикулярно ветровому воздействию и высоту этажа. Справа, в графической области, отображается кривая распределения ветрового давления по высоте здания. Данная кривая может быть отредактирована графически.

Табличное задание ветрового давления.png

Табличное задание ветрового давления

  • Реализована таблица перекосов вертикальных элементов.
  • Реализована передача нелинейных жесткостей в ВИЗОР-САПР с заданными диаграммами бетона, арматуры, ползучести. Выполняется формирование историй нелинейных загружений.

Задание исходных данных для расчета нелинейности.png

Задание исходных данных для расчета нелинейности

  • Разработан типовый объект. При создании модели можно указать какие параметры будут формировать типовый объект (например, материал и сечение для колонн), задать необходимые значения и сохранить такой объект. При необходимости повторного ввода подобного объекта не нужно вводить параметры заново, можно выбрать уже сохраненный типовый объект. Имеется возможность сохранить набор типовых объектов и использовать их в других проектах.
  • Создана команда “Выбрать подобные”. В диалоговом окне “Фильтр по параметрам” можно отметить те параметры, по которым следует считать объекты подобными. При этом имеется возможно создать свой уникальный фильтр по критериям и оперативно вызвать его из контекстного меню прямо в рабочей области проекта.
  • Реализован пакетный экспорт чертежей в pdf, dxf и dwg.Теперь можно выполнять экспорт не только одного текущего чертежа, а сразу нескольких или всех.
  • Реализовано создание пользовательских таблиц на чертеже.

МКЭ-процессор

  • Реализованы итерационные физически нелинейные КЭ (стержневые, пластинчатые и объемные), с учетом разгрузки. Новые КЭ реализуют теорию упруго-пластичности и могут применяться как для статических, так и для динамических расчетов. Наиболее актуально использование новых конечных элементов в расчетах сейсмостойкого строительства и прогрессирующего обрушения. Учет пластической работы конструкций позволяет существенно повысить экономичность проектных решений. Реализовано 2 метода разгрузки: метод 1 - пико-ориентированная гистерезисная модель, метод 2 - модель с изотропным упрочнением. В релизе 1 выбор метода разгрузки реализован через “Опции” настроек расчетного процессора, но в последующих релизах планируем реализовать инструмент выбора способа разгрузки для каждого типа жесткости отдельно. Эта настройка управляет видом разгрузки стержней и пластин с новым признаком физически нелинейного расчета «итерационный». По умолчанию принят метод 1.

Преимущества использования итерационных КЭ при решении физически нелинейных задач:

  • итерационный элемент не примет на себя усилия выше предела несущей способности;
  • дают возможность учета ветви разгрузки материала по начальному модулю упругости;
  • при разрушении не происходит фиксации накопленных усилий, предшествующих стадии разрушения;
  • при расчете задач динамики во времени нет “запаздывания”, т.е. проблем соответствия накопленных усилий и перемещений;
Настройка жесткости для итерационных КЭ
Настройка жесткости для итерационных КЭ
Пример работы итерационных КЭ с разгрузкой
Пример работы итерационных КЭ с разгрузкой
Диаграмма работы итерационных КЭ с разгрузкой
Диаграмма работы итерационных КЭ с разгрузкой
Феодосьев В.И. Сопротивление материалов
Феодосьев В.И. Сопротивление материалов: Учебник для вузов. – 10е изд., перераб. и доп. – М: Изд-во МГТУ им. Н.Э. Баумана, 1999. – 592 стр.
  • Для линейных пластинчатых КЭ реализован расчет напряжений в узлах, результаты расчета доступны в табличном и графическом видах. Эта опция дает возможность получать более точные результаты при крупной сетке.

Вычисление напряжений в узлах.png

Вычисление напряжений в узлах
  • Добавлена возможность учета физической нелинейности при задании стальных профилей (без необходимости описывать геометрию сечения через стандартные типы сечений). Данная возможность может быть использована и при использовании итерационных КЭ.

  • Реализован расчет на сейсмограммы в задачах динамики во времени.

Расчет на сейсмические воздействия - Сейсмограммы.png

Расчет на сейсмические воздействия - Сейсмограммы
  • Вывод узловых реакций для задач “Динамики во времени” (позволяет выполнять расчет нагрузок на фрагмент, расчет на продавливание, расчет реакций в простенках - меняющихся во времени, с выбором опасных комбинаций (моментов времени) для конструктивного расчета).

  • Реализованы новые КЭ (одно-, двух-узловой), позволяющие моделировать нелинейные шарниры (КЭ с произвольной кусочно-линейной диаграммой работы), для каждого из направлений работы задается свой график. Схема загрузки-разгрузки "Basic rules for peak-oriented hysteretic model".

    Данные КЭ могут использоваться в расчете предельного равновесия стержневых конструкций. Под расчетом предельного равновесия понимается нелинейный расчет конструкций, который позволяет смоделировать поведение конструкций под воздействием различных типов нагрузок, возникающих в результате землетрясения. Нелинейные шарниры рассматриваются как независимые нелинейные соединения в направлении каждой степени свободы в сечении, т.е. взаимодействие между различными степенями свободы игнорируется.
  • Для КЭ 255 добавлена возможность работы со вторым модулем упругости (позволяет моделировать работу сейсмоизоляторов по схеме КЭ 255 + КЭ55).

  • Согласованная матрица масс для стержней с учетом сдвига (стержни Тимошенко).

  • Для контроля исходных данных задач динамики во времени добавлен вывод масс.

  • Реализован новый модуль динамики (64) - трехкомпонентный ответ-спектр.

Задание трехкомпонентного ответ-спектра

Задание трехкомпонентного ответ-спектра
  • Реализован новый модуль динамики (63) для Турции, TBEC-2018.

Новый модуль динамики - Турция TBEC-2018.png

Новый модуль динамики - Турция, TBEC-2018
  • Реализована возможность использовать геометрически нелинейные конечные элементы в расчет “Инженерной нелинейности 2”. Область применения – уточненный расчет мачт (расчет на ветровую пульсацию «по нормам» с учетом преднапряжения; более точные собственные частоты для проверки на резонанс), вантовых мостов (в том числе точнее частоты для проверки на флаттер), большепролетных покрытий (на резонанс от шума) и т.п.

  • Для задач с использованием физически нелинейных шаговых КЭ по умолчанию включен учет смещения центра жесткости сечения.

Проектирование ЖБК

  • Добавлена возможность вывода дополнительной арматуры при расчете на прогрессирующее обрушение.
  • Добавлен новый тип элемента “Наклонная балка”.
  • В расчете огнестойкости добавлена возможность управления расчетом поперечной арматуры.
  • Реализована возможность редактирования таблицы материалов по ячейкам.
  • Реализована возможность подбора/проверки армирования в пластинчатых элементах, для которых вычислены напряжения не только в центре тяжести, но и в узлах. Необходимо отметить, что при сгущении сети КЭ разница результатов уменьшается.
Наглядная иллюстрация отличия вычисления армирования (усилий) в узлах
Наглядная иллюстрация отличия вычисления армирования (усилий) в узлах
Наглядная иллюстрация отличия вычисления армирования (усилий) в узлах
Наглядная иллюстрация отличия вычисления армирования (усилий) в узлах
  • Добавлена возможность проверки на заданное армирование для норм СП РК EN 1992-1-1:2004/2011.
Результаты проверки на заданное армирование для норм СП РК EN 1992-1-1:2004/2011
Результаты проверки на заданное армирование для норм СП РК EN 1992-1-1:2004/2011
  • Добавлена возможность учета коэффициентов условий работы для бетона и арматуры в соответствии с требованиями “Изменения 1” к СП 14.13330.2018.
  • Для норм СП 63.13330.2018 реализована возможность построения эллипсоида несущей способности для I ГПС.
  • Разработан альтернативный алгоритм подбора армирования по II ГПС при использовании теории Вуда.

Проектирование стальных конструкций

  • Добавлен новый тип расчетного элемента - “универсальный” стержень (ферма-балка-колонна), который позволяет получить огибающий результат по всем проверкам стального сечения. Расчет и/или проверка универсального элемента выполняется последовательно по трем расчетным процедурам – как для ферменного элемента, колонны и балки. При формировании таблиц и мозаик результатов для универсального элемента выводятся максимальные проценты использования сечения по соответствующим проверкам. В локальном режиме расчета элемента схемы доступна расширенная информация о результатах расчета – при анализе универсального элемента можно выбрать расчетную процедуру (ферменный элемент, колонна или балка) и уточнить процент использования, представляющий интерес.
Универсальный тип элемента в расчете СТК.png
Универсальный тип элемента в расчете СТК
  • Реализован учет свободного и стесненного кручения при расчете стальных сечений в соответствии с EN 1993-1-1:2005/AC:2009, СП РК EN 1993-1-1:2005/2011.
  • Реализованы положения СП РК EN 1993-1-1:2005/2011 и НП РК (сплошные сечения).
  • Результаты проверки стальных сечений для норм СП РК EN 1993-1-1
    Результаты проверки стальных сечений для норм СП РК EN 1993-1-1
  • Для норм EN 1993-1-1:2005/AC:2009, СП РК EN 1993-1-1:2005/2011 добавлена новая мозаика результатов “Класс сечения”.
  • Добавлена возможность расчета огнестойкости стальных сечений с учетом стесненного кручения.
  • Расчет стальных сечений ускорен за счет многопоточности.
  • Для норм EN 1993-1-1:2005/2011, СП РК EN 1993-1-1:2005/2011 добавлена возможность исключать комбинации нагрузок, которые не используются при проверке/подборе сечений на эксплуатационную пригодность.

ГРУНТ

  • Добавлена возможность вычисления жесткости КЭ 57 (свая) по модели условного фундамента;

Свойства группы свай и определение жесткости сваи по модели условного фундамента
Свойства группы свай и определение жесткости сваи по модели условного фундамента
  • Усовершенствован метод учета веса грунта, изъятого из котлована (эпюра σzγ). Если в предшествующих версиях контур котлована в плане всегда принимался равным контуру фундамента, то теперь появилась возможность задать контур котлована независимо от фундамента. Чтобы смоделировать контур котлована, необходимо создать нагрузку на грунт нулевой величины и установить ей признак σzγ (вычислять напряжение от вынутого грунта под этой нагрузкой), а для нагрузок от фундамента этот признак отключить. При расчете группы свайного поля как условного фундамента котлован всегда следует моделировать отдельной нагрузкой. Важно – пока в релизе 1 учет веса грунта изъятого из котлована (эпюра σzγ) будет считаться по ц.т. участка нагрузки (в этой точке определяется глубина котлована и вес грунта, и распространяется на всю площадь данной нагрузки), поэтому требуется мелкая разбивка нагрузок на участки (стоит отказаться от «объединения нагрузок» или вводить большее количество диапазонов для объединения).
  • Добавлена возможность опционального вывода результатов расчета. Например, если задана нагрузка, моделирующая лишь габариты котлована для учета веса грунта изъятого из котлована (эпюра σzγ), то в этой нагрузке стоит отказаться от вывода результатов, чтобы не мешать анализу области, интересующих в расчете нагрузок. По умолчанию включена для всех нагрузок.

Расчет осадки свайного фундамента по модели условного фундамента и моделирование котлована
Расчет осадки свайного фундамента по модели условного фундамента и моделирование котлована
  • Оптимизирован алгоритм определения глубины сжимаемой толщи.
  • Для норм СП 22.13330.2016 реализована возможность расчета осадок и получения коэффициентов постели для:
    • насыпных грунтов;
    • просадочных грунтов;
    • набухающих (пучинистых) грунтов;
    • засоленных грунтов;
    • грунтов, содержащих органические включения;
    • вечномерзлых грунтов (СП 25.13330.2012).
Подробнее с этой возможностью можно познакомиться в статье Определение деформаций оснований, сложенных из специфических грунтов (по СП 22.13330.2016 «СНиП 2.02.01-83* Основания зданий и сооружений»)
Новые возможности системы ГРУНТ.png
Новые возможности системы ГРУНТ

Стержневые аналоги

  • Реализован новый способ создания стержневых аналогов, который позволяет из набора отмеченных на схеме элементов выполнить привязку элементов и узлов для начального и конечного поперечного сечения целевого стержня.
  • Добавлена возможность сохранения целостности данных о стержневых аналогах при выполнении упаковки схемы, когда изменяется нумерация узлов и элементов в расчетной модели.
Формирование поперечных сечения стержневого аналога по целевому стержню.png
Формирование списков узлов и элементов для начального и конечного поперечного сечения стержневого аналога из отмеченных на схеме элементов по целевому стержню
Автоматическое создание стержневых аналогов по целевым стержням.png
Автоматическое создание стержневых аналогов по целевым стержням

Книга отчетов и справочная система

  • Таблицы исходных данных и результатов расчета расширены данными о новых функциях.
  • Таблицы результатов для пластинчатых элементов расширены информацией о напряжениях в узлах с учетом нумерации их в расчетной схеме. РСН и РСН определяющие (расчетные / расчетные длительнодействующие / нормативные / нормативные длительнодействующие), усилия от РСН, таблицы РСУ (расчетные / расчетные длительнодействующие / нормативные / нормативные длительнодействующие), главные и эквивалентные напряжения (по усилиям / РСН / РСУ).
  • Добавлена опция, которая позволяет управлять именем снимка экрана при обновлении.
  • Добавлены новые таблицы результатов расчета стальных конструкций для норм EN 1993-1-1:2005/2011, СП РК EN 1993-1-1:2005/2011.
  • Контекстная справка дополнена описанием новых возможностей ПК ЛИРА-САПР 2021 (ВИЗОР-САПР).
Стержневые аналоги, получить из отмеченных элементов (фрагмент контекстной справки)
Наглядная иллюстрация отличия вычисления армирования (усилий) в узлах
Наглядная иллюстрация отличия вычисления армирования (усилий) в узлах
Наглядная иллюстрация отличия вычисления армирования (усилий) в узлах

Конструктор сечений

  • Добавлена возможность импорта железобетонных сечений из среды ВИЗОР-САПР для расчета огнестойкости. В модель передаются законы деформирования материалов, соответствующие требуемому пределу огнестойкости.
  • Реализован инструмент, позволяющий добавлять характерные точки в текущую редактируемую модель сечения. При расчете в характерных точках сечения определяются значения усилий и напряжений, которые можно отобразить в соответствующей таблице. Характерная точка может быть включена в триангуляционную сеть.
  • Добавлена контекстная справка.

САПФИР-ЖБК

  • Реализовано формирование опалубочных чертежей.
  • Разработан инструмент “Закладные детали” для нанесения условных обозначений позиций закладных деталей на опалубочных чертежах железобетонных элементов: плит перекрытий, стен, диафрагм жесткости и т.д.
    Создана библиотека закладных деталей, куда включены наиболее популярные закладные детали. Файл библиотеки деталей может быть расширен и откорректирован. Каждая закладная деталь характеризуются серией и названием (маркой). Закладные детали отображаются условно на опалубочном чертеже. Вид условного обозначения закладной детали определяется текущей проекцией и, предусмотренным проектом, положением закладной детали в теле железобетонного элемента. Результаты подсчета деталей размещаются в общей спецификации плиты.
  • Создан режим автоматической раскладки участков дополнительного армирования для плиты перекрытия. Участки дополнительного армирования устанавливаются на основе цветовых зон мозаики армирования.
  • Добавлена возможность вынести результаты теоретического армирования плит в виде мозаик на лист чертежа. Дополнительно на чертеж можно разместить таблицу, которая описывает интенсивность армирования.

САПФИР-Генератор

  • Выполнено ускорение работы.
  • В ноде “Нагрузка-штамп” добавлена дополнительная опция “отверстие”.
  • Для нода колонн, созданных по контуру поперечного сечения (например, из dxf), добавлено определение точек (например, по центру масс сечения) для выхода “Точки”.
  • Доработано тиражирование проемов с помощью нода “Тиражирование по этажам”.
  • Создан нод “Дополнительные линии и точки триангуляции в стене”.
  • Создана интегрированная среда разработки пользовательских нодов на языке IronPython. Доработан API.
Привязка к новости: 
Изменено: 18 января, 2024

Комментарии

Написать

История версий