ЛИРА-САПР 2014 R1 Release Notes
Новая система МЕТЕОР, новый режим конструктивные блоки, новая программа КОЛОННА в системе САПФИР-ЖБК, усовершенствованный нелинейный расчет, ферменные узлы из трубчатых элементов круглого профиля, новые режимы в интерфейсе ЛЕНТА - это и многое другое доступно в новой версии программного комплекса ЛИРА-САПР 2014.
ВИЗОР-САПР
Введена возможность нового топологического структурирования расчетных схем с использованием конструктивных блоков. В качестве конструктивных блоков могут выступать произвольные фрагменты конструкции, назначенные пользователем (колонны, балки, стены, плиты, рамы, фермы, этажи и т.п.). Используя конструктивные блоки, теперь намного проще и быстрее находить, выделять и фрагментировать на расчетной схеме отдельные элементы зданий и сооружений, ориентируясь по присвоенным именам и маркам конструктивных блоков.
Разбиение всего здания на конструктивные блоки (или, аналогично, группировка отдельных конечных элементов в соответствующие конструктивные блоки) может выполняться в автоматическом режиме, с использованием встроенных алгоритмов анализа положения отдельных объектов и их геометрии. Реализован также ручной режим создания и редактирования конструктивных блоков.
Удобство и гибкость использования конструктивных блоков достигается благодаря возможности задания для них редактируемых параметров «вид конструктивного блока», «этаж», «марка», «комментарий», «цвет представления на схеме», анализа и контроля параметров «жесткость», «материалы».
Режим конструктивные блоки
При обработке результатов нелинейного расчета расширен состав выводимых результатов. К традиционной информации о нелинейных перемещениях и усилиях добавились значения о ширине и глубине раскрытия трещин в стержневых и пластинчатых элементах, выводимые в виде цветовых мозаик и изополей непосредственно на расчетной схеме. Появилась возможность просматривать и документировать результаты не только на последнем шаге заданной нелинейной истории нагружения, но и в любом промежуточном шаге каждого из нагружений, входящих в нелинейную историю.
![]() |
![]() |
![]() |
![]() |
| Визуализация нелинейного расчета | |
При построении эпюр усилий для стержневых систем учитывается местная нагрузка.
Расширены возможности системы расчета нагрузок на фрагмент. Реализация данного расчета для суперэлементных задач позволяет получать нагрузки на фрагмент не только в суперузлах основной схемы, но и в заданных внутренних узлах суперэлементов.
Разработаны новые стили ленточного интерфейса: «Лента ЖБК», «Лента Сталь», «Лента Плюс».
Используя стили «Лента ЖБК» и «Лента Сталь» пользователь получает быстрый доступ к расширенному инструментарию для более детального анализа результатов работы соответствующих конструирующих систем.
Создано руководство, при помощи которого пользователь может самостоятельно создать свой стиль «Лента Пользователя».
Создана панель инструментов «Виды», которая упрощает процесс работы с расчетной схемой и дает более простое и наглядное позиционирование схемы в рабочем пространстве.
Новые возможности в интерфейсе «Лента»
МКЭ-процессор
Реализованы новые процедуры определения характеристик НДС в сечениях стержневых и пластинчатых элементов в нелинейной постановке. Это дало возможность устранить многочисленные алогизмы и несовершенства, которые в ряде случаев проявлялись в предыдущих версиях ПК ЛИРА, включая и ПК ЛИРА 9.6: необоснованное разрушение конструкции на первых шагах нагружения; неоправданное нарастание усилий в уже разрушенных и вышедших из строя элементах; различные результаты расчета при аппроксимации зависимостей σ-ε заданных аналитически (например, экспонентой) кусочно-линейными зависимостями.
Реализован вывод результатов расчета на каждом шаге нагружения. При построении эпюр усилий для нелинейно деформируемых стержней учитывается местная нагрузка.
В полном объеме реализована теория ползучести изложенная в Еврокоде. Сейчас величина ползучести зависит не только от времени, но и от величины напряжения.
Для решения задач с конструктивной нелинейностью (например, односторонние связи) реализован модифицированный метод компенсирующих нагрузок.
МКЭ-процессор предыдущих версий ПК ЛИРА, включая ПК ЛИРА 9.6, заранее вычислял необходимое количество итераций, и если после их выполнения оказывалось, что заданная точность не достигнута, то расчет прекращался. Новый МКЭ-процессор выполняет столько итераций, сколько необходимо для получения решения с необходимой точностью, т.е. пользователь всегда получает решение. В случае если система с элементами конструктивной нелинейности геометрически изменяемая, выдается соответствующее сообщение. В старом МКЭ-процессоре в этом случае выдавалось неправильное труднообъяснимое решение.
Расчет железобетонных конструкций (АРМ-САПР)
Реализован Еврокод 2. Базовый вариант. Реализация выполнена с учетом возможности дальнейших адаптаций к различным региональным вариантам.
Выполнена адаптация Еврокода к соответствующему варианту Еврокода для Казахстана.
Расчет железобетонных конструкций
МЕТЕОР (МЕТод Единого Объединенного Результата)
Разработана новая система, дающая возможность интегрировать задачи, которые объединяет общая топология (координаты узлов, конечно-элементная схема, геометрия сечений). Задачи могут иметь различные нагружения, жесткости, граничные условия.
Система интеграция задач - МЕТЕОР
Интегрированная задача будет содержать топологию, жесткости, варианты конструирования базовой задачи и результаты расчетов всех задач. Для такой интегрированной задачи задаются и вычисляются единые РСУ, на основании которых осуществляется конструирование по заданным вариантам.
Например: создается общая для всех задач конечно-элементная схема.
В первой задаче выполняется расчет на постоянные и длительно действующие нагрузки.
Во второй задаче – расчет на сейсмические и ветровые воздействия с измененными характеристиками грунтового основания (коэффициенты постели С1 и С2).
В третьей – расчет на заданные перемещения (подработки, осадки).
Пользователь создает интегрированную задачу для получения единых РСУ по этим трем задачам.
Прежняя система ВАРИАЦИЯ МОДЕЛЕЙ является частным случаем новой системы.
Расчет металлических конструкций (СТК-САПР)
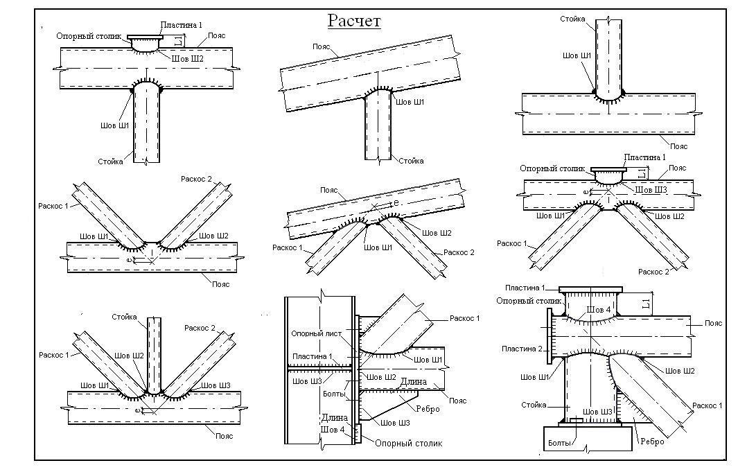
Ферменные узлы из трубчатых элементов
Реализован расчет параметрических ферменных узлов из трубчатых (круглого сечения) элементов – 9 основных узлов и 6 вариаций. Производится раскрой примыкающих элементов, определяется длина швов. Расчет выполняется в соответствии с СП 16.13330.2011.
Результатом расчета узла является отчет, в котором указаны проценты использования несущей способности каждого элемента (швы, опорные фланцы, опорные столики и др.) составляющего узел, что дает полную картину его работы и позволяет запроектировать узел оптимально. Выполняется трассировка.
![]() |
![]() |
| Ферменные узлы из трубчатых элементов | |
Режим «Коррозия» (релиз R2 - июнь 2014)
Разработан новый режим «Коррозия». Для сечений стальных элементов имеется возможность указать глубину коррозии в миллиметрах. В этом случае в автоматическом режиме вычисляются новые геометрические характеристики с учетом утонения от коррозии, которые учитываются как при статическом расчете, так и при проверке в подсистеме СТК-САПР.
Балка с гофрированной и гибкой стенкой
Разработан экспорт СТК-САПР → Platon-Structure для подбора и проверки на прочность и устойчивость балок с гофрированной и гибкой стенками.
САПФИР-ЖБК
В дополнение к ранее разработанным системам ПЛИТА и ДИАФРАГМА в САПФИР-ЖБК включена новая система КОЛОННА.
Пользователь имеет возможность провести унификацию колонн на основе импортируемой из ПК ЛИРА-САПР информации об армировании. В автоматизированном режиме выполняется армирование колонны.
Армирование колонн
Для колонн создаются рабочие чертежи армирования со спецификацией, ведомостью деталей и ведомостью расхода стали. В автоматическом режиме выполняется образмеривание поперечных сечений колонн с учетом положения стержней рабочей арматуры. Имеется возможность получить маркировочный план вертикальных Ж/Б элементов с их спецификацией.
Маркировочный план колонн и стен
3D арматура
САПФИР-КОНСТРУКЦИИ
Реализована функция «Условия опирания» (релиз R2 - июнь 2014).
Пользователь имеет возможность для плит перекрытий в местах их опирания на стены и колонны задать условия опирания (шарнирное, шарнирное с эксцентриситетом, свободное).
Предусматривается также задание условий опирания произвольных элементов на произвольные элементы. В соответствии
с введенной информацией в конечно-элементной модели автоматически выполняются соответствующие корректировки (расшивка узлов, введение АЖТ и объединение перемещений).
Разработан экспорт в ВИЗОР-САПР конструктивных блоков, которые содержат информацию о типе элемента (стена, колонна, балка, плита), принадлежности этажу, марке, жесткостных характеристиках, а также цвет и комментарий.
Для нагрузок, импортируемых в ВИЗОР-САПР, автоматически назначаются виды загружений (постоянное, длительное, кратковременное), коэффициенты надежности и доли длительности с возможностью их редактирования.
Для стен, балок, колонн, объектов «призма» и «прочие» введен новый режим ручного редактирования аналитической модели, который позволяет корректировать аналитическую модель, сохраняя неизменной физическую модель.
Для балок реализован механизм подрезок физической и аналитической моделей по стенам, колоннам, балкам и плитам перекрытий.
Реализована возможность в полуавтоматическом режиме выполнять корректировку импортированных IFC моделей. Разработаны функции для преобразования одних типов объектов (стены, колонны, балки, плиты, призмы, прочие), в другие, например, стены в колонны, колонны в балки, балки в плиты и т.д.
Корректировка импортированных IFC моделей
Реализованы новые функции для импорта IFC модели, созданной в программе ArchiCAD: при импорте учитывается интерпретация объекта (несущий элемент, нагрузка), доработано распознавание отверстий в плитах перекрытий, выполненных нестандартными средствами.
Реализован режим формообразования, который дает возможность сгенерировать каркас здания по существующим 3D формам (призмы, поверхности вращения, конусы, сферы и т.п.). 3D формы автоматически разбиваются на этажи с опциональным формированием плит и колонн.
Технология формообразования








Комментарии