ЛИРА-САПР 2012 R3 Release Notes
- усовершенствованный 32 и 64 разрядный процессор; - нелинейный расчет стал таким же доступным, как линейный; - реализованы расчеты и конструирование плит на продавливание; - препроцессор САПФИР-КОНСТРУКЦИИ стал полнофункциональным
Препроцессор САПФИР-КОНСТРУКЦИИ
Введена новая функция «Опорные закрепления». Пользователь задает на аналитической модели поверхность, линию или отдельный узел, а также тип закрепления (номера степеней свободы, по направлению которых необходимо наложить связи). Все узлы после генерации конечно-элементной сетки будут иметь закрепления указанного типа.Таким образом, в настоящее время САПФИР-КОНСТРУКЦИИ обладает полной функциональностью, чтобы создать полноценную расчетную схему в технологической цепочке архитектурная модель – аналитическая модель – расчетная схема.
Теперь набор функциональных возможностей САПФИР-КОНСТРУКЦИИ по созданию конечно-элементной модели (КЭ) включает:
Топологическая схема (пересечения, дотягивание) - осуществление поиска пересечений элементов. Дотягивание и подрезка контуров выполняются с заданной точностью, имеется возможность ручного управления и корректировки.
Абсолютно жесткое тело (АЖТ) – формирование АЖТ в местах пересечения элементов (колонн и стен с перекрытиями, стен со стенами, балок со стенами и другое) с последующей передачей в ПК ВИЗОР-САПР.
Монтаж - автоматический и/или автоматизированный режим задания последовательности возведения конструкции в виде монтажных событий с последующей визуализацией процесса возведения.
Плиты различной толщины – позволяют задавать плиты с произвольными вставками различной толщины, в том числе и капители произвольной формы.
Капители – создаются ступенчатой, конической, пирамидальной или комбинированной формы с последующей передачей в ПК ВИЗОР-САПР.
Произвольные наклонные элементы и пандусы. Для задания пандусов задается проекция пандуса на нижнее перекрытие и линии примыкания пандуса к нижнему и верхнему перекрытию. Конечно-элементная сетка пандуса согласуется с конечно-элементными сетками верхнего и нижнего перекрытия.
Нагрузки - автоматизированное формирование моделей эксплуатационных нагрузок от типа помещений, предусмотренных архитектурным проектом, и нагрузок от перегородок и стен, не являющихся несущими, с учётом проёмов. Возможность формирования нагрузок от статического ветра в зависимости от выбранных норм, ветрового района, типа местности и направления ветрового воздействия.
Опорные закрепления. Пользователь задает на аналитической модели поверхность, линию или отдельный узел, а также тип закрепления (номера степеней свободы, по направлению которых необходимо наложить связи). Все узлы после генерации конечно-элементной сетки (лежащие в заданных поверхностях, линиях и т.п.) будут иметь закрепления указанного типа.
ВИЗОР-САПР Режим создания расчетной схемы
В единую графическую среду внесены следующие усовершенствования и новации:- Добавлено задание стержней переменного по длине сечения. Такой стержень может быть задан как конструктивный элемент, состоящий из нескольких конечных элементов. Параметры сечения отдельных конечных элементов, составляющих такой стержень, вычисляются автоматически. Включена визуализация стержней переменного по длине сечения в теле на пространственной модели (в 3D-виде).
- Обновлен внешний вид диалоговых окон, улучшен и унифицирован дизайн интерфейсных элементов в диалогах и панелях инструментов.
- Расширена и дополнена конфигурация ленточного интерфейса: в режиме «Расчет» добавлен вызов расчета с учетом инженерной нелинейности, в режиме «Конструирование» введены инструменты для анализа результатов расчета поперечной арматуры на продавливание.
- Добавлена возможность импорта схем из Revit Structure 2013.
МКЭ ПРОЦЕССОР
Новые возможности процессора ЛИРА-САПР 2012 R3:- Реализован новый метод расчета конструкций с учетом физической нелинейности. Основные этапы расчета по этому методу:
- 1.1. Задаются исходные данные как для обычного расчета.
1.2. Задается «определяющее» нагружение, которое, по мнению пользователя, в основном определит напряженно-деформированные состояния элементов конструкции. «Определяющее» нагружение задается как набор загружений, которые были заданы для всего расчета, каждое со своим коэффициентом.
1.3. Выполняется нелинейный расчет, применяется итерационный метод секущих (метод Биргера), в результате которого на основании вычисленных на последней итерации усилий и предварительной арматуры в сечениях стержней и пластин определяются жесткостные характеристики. Учитывается обусловленная физической нелинейностью переменная жесткость по длине стержня, и, как правило, сильная ортропия для пластинчатых элементов.
1.4. На основе полученных жесткостных характеристик выполняется расчет на все заданные нагружения (в том числе динамические), рассчитываются РСУ, РСН, подбирается проектная арматура и выполняется конструирование в конструирующих системах ПК ЛИРА-САПР 2012 R3. - Усовершенствованы КЭ оболочки и плиты. Теперь они учитывают податливость сдвигу, что позволяет получить более адекватные результаты для толстых плит (верификационный пример "Тест №12").
- Реализован новый элемент – стержень переменного сечения. Параметры сечения изменяются линейно по длине стержня. Все атрибуты (нагрузки, граничные условия) аналогичны КЭ №10.
- Изменен расчет на сейсмическую нагрузку по акселерограмме. В основу нового метода положено интегрирование акселерограммы во времени с учетом коэффициента динамичности. Новый расчет позволяет получить более близкие результаты к теоретическим (верификационный пример "Тест №3").
- Усовершенствован интерфейс процессора.
- Процессор выходит в двух вариантах: 32-разрядный и 64-разрядный. Вариант х64 позволяет использовать всю оперативную память компьютера (более 2Гб).
- Устранен ряд несовершенств и незначительных погрешностей:
- 7.1. Для динамических расчетов исправлен сбор масс с элементов. В прежних версиях при сборе масс не учитывалось расположение нагрузки, а суммарная нагрузка равномерно распределялась между узлами элемента.
7.2. Для динамических расчетов исправлен сбор масс с суперэлементов. В прежних версиях при сборе масс не учитывалась схема расположения нагрузок, приложенных внутри суперэлемента, а суммарная нагрузка равномерно распределялась между узлами суперэлемента.
7.3. Локальная система координат узлов теперь корректно учитывается при вычислении инерционных сил.
7.4. Суперэлемент теперь корректно работает в системе Монтаж.
7.5. Исправлено вычисление усилий в элементах в статической составляющей ветровой динамики. В прежних версиях в этой составляющей некорректно вычислялись усилия в стержнях, если в ветровом статическом загружении была приложена нагрузка на этот стержень.
7.6. Также внесен ряд других усовершенствований.
Для удобства пользователей оставлена возможность использовать процессор ЛИРА-САПР 2012 R2, тем более что некоторые режимы (шаговый расчет и устойчивость) еще не включены в процессор ЛИРА-САПР 2012 R3.
ВИЗОР-САПР Режим конструирования
- Реализован новый расчет поперечной арматуры на продавливание в железобетонных плитах.
- В САПФИР-КОНСТРУКЦИИ для отмеченных колонн автоматически генерируются контуры продавливания в зависимости от сечения примыкающей к плите колонны, толщины плиты, находящихся вблизи отверстий или края плиты. Пользователь имеет возможность корректировать автоматически полученные контуры продавливания.
- В ВИЗОР-САПР для отмеченных колонн для каждого нагружения вычисляются усилия продавливания (нормальное усилие и два момента), для каждой колонны по усилиям от нагружений составляется РСУ продавливания и определяется арматура продавливания по различным нормативам (с учетом или без учета изгибающих моментов). Затем визуализируется арматура продавливания, контуры продавливания и коэффициенты использования.
- Реализован новый альтернативный метод расчета арматуры для пластинчатых элементов – метод Вуда. Пользователь может выбирать между новым методом Вуда и методом Карпенко, реализованным ранее. В ряде случаев метод Вуда дает более логичные результаты, но для сильно армированных пластин возможно некоторое завышение арматуры.
- Введено новое графическое представление шкалы. Добавлена также возможность раздельной настройки цветовых шкал для результатов расчетов стальных конструкций.
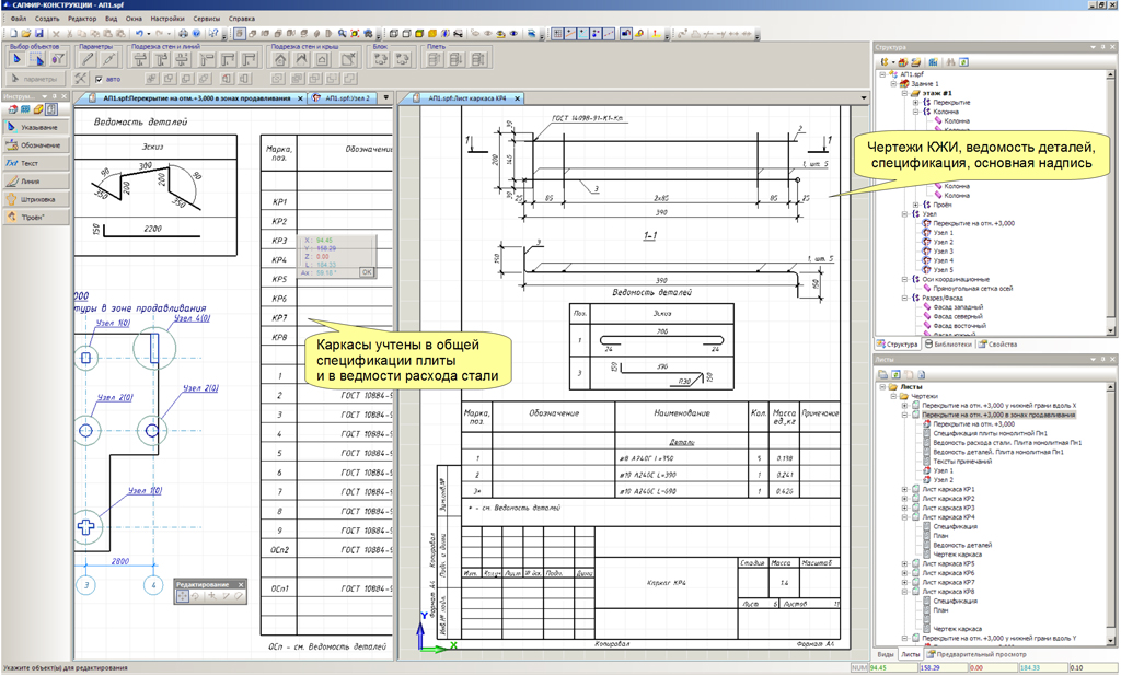
Cистема САПФИР-ЖБК
дополнена новым режимом «Продавливание».Режим «Продавливание» функционирует по следующей схеме:
В САПФИР-ЖБК импортируются контуры продавливания, величина арматуры продавливания и опалубочный чертеж плиты.
По величине арматуры продавливания и заданному диаметру в зоне продавливания автоматически расставляются арматурные стержни. Пользователь производит унификацию зон и для каждой унифицированной зоны в автоматизированном режиме объединяет их в каркасы различного типа (гребенка, прямолинейные или криволинейные каркасы и т.п.).
В автоматизированном режиме происходит формирование чертежа, включающего раскладку каркасов, чертежи каркасов, спецификацию арматуры, ведомости деталей и материалов, примечания.


Комментарии