Новые возможности и функции ПК ЛИРА САПР 2013
Группа компаний LiraLand
Версия с системными компонентами, ZIP, размер файла:685МБ
Новые возможности ВИЗОР-САПР
-
- задавать имя и вид каждого загружения, для использования в дальнейшем при создании таблиц РСУ и РСН;
- добавлять новое загружение в конец или вставлять в любую позицию списка загружений;
- удалять любое загружение;
- менять загружения местами (упорядочивать список).
Диалог «Редактирование загружений» дает полную информацию об истории загружений, их виде и типе, количестве и характеристиках приложенных нагрузок и т.п.
-
- инверсная отметка объектов схемы дополнена возможностью только отмечать (удерживая CTRL) или только снимать отметку (удерживая SHIFT);
- добавлена возможность отмечать все узлы и элементы, лежащие на одной строительной отметке или принадлежащие одной строительной оси, указывая на эту отметку/ось курсором;
- введен опциональный режим видимости отмеченных узлов и элементов, скрытых вышележащими объектами расчетной схемы (см. новую опцию во флагах рисования);
- реализовано восстановление предшествующего состояния отметки узлов и элементов схемы после отмены выделения.
-
- выделение вновь созданных объектов (узлов и элементов) цветом, возможность их автоматической отметки (см. новую опцию во флагах рисования);
- выделение узлов и элементов, изменивших свои свойства вследствие произведенной над ними операции, посредством укрупнения узлов или утолщения линий, визуализирующих эти элементы.
-
- подробно (выводятся все значения в каждом расчетном сечении, без наложения значений друг на друга);
- выводится только одно (большее по модулю) значение на концах элементов, к которым примыкают другие стержневые элементы со своими значениями;
- выводятся только экстремальные значения для непрерывных последовательных групп (цепочек) стержневых элементов.
-
- результаты работы подбора и проверки стальных сечений;
- информация о стержнях с переменной по длине жесткостью для каждого расчетного сечения.
Новые возможности МКЭ-процессора
Продолжается наращивание наукоемкости программного комплекса. В предыдущей версии были реализованы улучшенный алгоритм расчета на динамические воздействия по акселелограмам, новая инженерная нелинейность, ряд новых конечных элементов.
В этой версии:
-
- теперь можно задавать произвольное количество форм потери устойчивости (больше 3-х);
- добавлена возможность поиска форм с коэффициентами запаса устойчивости в заданном диапазоне (например, пользователя интересуют все формы с коэффициентами запаса от 0 до 2.5);
- добавлена возможность поиска форм потери устойчивости с отрицательным коэффициентом запаса устойчивости для поиска слабых мест конструкций при смене знака усилий. Актуально для конструкций в состоянии невесомости (например системы развертывания спутников в космосе);
- параметры чувствительности теперь вычисляются для каждой формы (а не только для 1-й);
- в ряде случаев при расчете на устойчивость таких конструкций как мачтово-вантовые системы, мембраны с гибким контуром и др., новая методика может давать результаты, более соответствующие реальной работе конструкции.
Новые возможности АРМ-САПР
Новые возможности системы Грунт
Определение осадок существующих сооружений
Новые возможности системы СТК-САПР
В предыдущих версиях ЛИРА-САПР был реализован расчет сложных и составных сечений (более 50 типов) на основе СНиП II-23-81* (СП 16.13330.2011).
В этой версии конструирующей системы СТК-САПР реализован расчет также и узлов стальных конструкций по Актуализированной редакции СНиП II-23-81* (СП 16.13330.2011). Теперь все сечения и узлы в СТК-САПР можно рассчитывать как по СНиП, так и по СП. Перечень узлов СТК-САПР включает:
всего 45 узлов.
В расчете стальных узлов предусмотрена возможность, как проверки, так и подбора элементов, составляющих узел.
Расчет опорного узла (башмака) колонны
Результатом расчета узла является отчет, в котором указаны проценты использования прочности/устойчивости каждого элемента, составляющего узел, что дает полную картину его работы и позволяет смоделировать узел оптимально. Уникальной особенностью расчета узлов в СТК-САПР является то, что для каждого приведенного в отчете числа можно отследить, как оно было получено, используя инновационную технологию открытого расчета трассировку. Технология трассировки расчета позволяет просмотреть весь алгоритм нахождения каждого процента использования, просмотреть все формулы как в символьном, так и в цифровом виде с необходимыми пояснениями и гиперссылками, что позволяет полностью восстановить предпосылки и ход расчета узла. В отличие от других программ, где результатом расчета узла является вывод "проходит или не проходит" или выдаются невнятные рекомендации, в системе СТК-САПР пользователь на основе выдаваемой информации самостоятельно может сделать вывод, какой элемент узла надо усилить или заменить тип узла.
Элемент трассировки
Узел, рассчитанный в СТК-САПР имеет свое графическое отображение в среде программы KM-САПР, которая является надстройкой над AutoCAD, что позволяет, при необходимости, подключить весь арсенал возможностей, предоставляемых данной графической системой.
КМ-САПР выполняет построение пространственной модели рассчитанного узла и всех необходимых чертежей, что позволяет визуально оценить результаты расчета, а также использовать данную модель узла при подготовке чертежей стадии КМ.
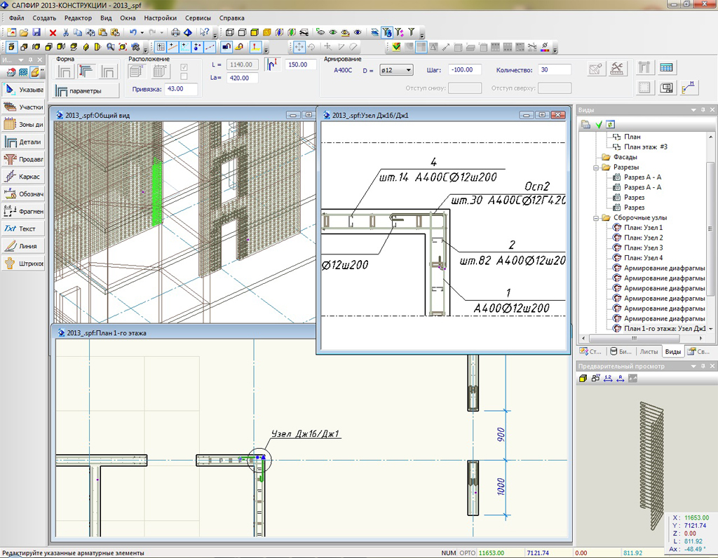
Новые возможности САПФИР-КОНСТРУКЦИИ
Автоматическое «выравнивание»
Отсечение плоскостью общего положения
Библиотека пользовательских типов линий представлена в виде редактируемых файлов. Вес линии задает толщину линии, зависящую от масштаба вида.
Библиотека пользовательских типов линий
Новые возможности САПФИР-ЖБК
Функциональные возможности подсистемы САПФИР-ЖБК существенно расширены. Разработаны новые диалоговые инструменты, благодаря которым, теперь можно осуществлять конструирование не только плит перекрытий, но и диафрагм жёсткости – несущих железобетонных стен.
Как и ранее для плит, для диафрагм можно импортировать результаты прочностного расчёта и подбора арматуры, выполненного в ПК ЛИРА-САПР. Специальные режимы визуализации позволяют увидеть результаты в трёхмерном пространстве проектируемого здания в виде мозаики совместно с изображением конструктивных элементов. Пользователь управляет цветовой шкалой, контролирует режимы визуализации и направление стержней.
Мозаика совместно с изображением конструктивных элементов
Пользователь может выделять вертикальные плети геометрически идентичных стен, назначать диафрагмам со сходными характеристиками армирования одинаковые марки (выполнять унификацию в автоматизированном режиме).
Для каждой марки диафрагмы выполняется построение изополей максимальной площади арматуры с учётом результатов расчёта армирования для всех экземпляров данной марки. Расчетное армирование может быть показано в виде изополей или мозаики по двум направлениям для обеих граней диафрагмы, а также по максимальной площади, взятой из двух граней, по которой выполняется дальнейшее конструирование.
В пределах каждой диафрагмы может быть выделено несколько зон размещения арматурных стержней, каждая из которых характеризуется определённым диаметром, шагом размещения и формой стержней.
Предусмотрена возможность армирования также отдельными стержнями различной формы.
Конструирование выполняется в автоматизированном режиме с возможностью ручного редактирования диаметра, шага, привязки и величины отгиба арматурных стержней. Предусматриваются арматурные выпуски, в том числе, в разбежку.
Программа обеспечивает контроль необходимой площади арматуры, визуализирует участки, где армирование недостаточно, подсвечивает мозаику недоармирования в соответствии с текущей шкалой.
На схеме армирования диафрагмы автоматически обозначаются контуры проёмов, линии примыкания других диафрагм, швы бетонирования на стыке с плитами перекрытий, наносятся основные размеры.
Для обрамления отверстий и усиления краёв предусмотрен инструмент, позволяющий решить эти задачи несколькими щелчками мыши. При этом имеется возможность гибкой доводки результатов вручную.
Гибкий контроль конструктивных требований обеспечивается многочисленными опциями и настройками. Зоны армирования и отдельные стержни обозначаются выносками. Доступен инструмент нанесения дополнительных размеров и обозначений в ручном и автоматизированном режимах.
Для повышения наглядности схем и чертежей армирования цвет и вес линий, обозначающих арматурные стержни, может зависеть от диаметра. Также предусмотрен режим визуализации арматуры «в теле» на разрезах и в 3D. Опционно диаметр стержней может отображаться в текущем масштабе.
Инструмент «Разрез/сечение» на развёртке диафрагмы позволяет задать положение секущей плоскости и получить вертикальные и горизонтальные разрезы, в заданном масштабе отражающие расположение арматуры. На разрезах доступны функции графического редактирования, позволяющие изменить положение (привязку) и размеры зон армирования и арматурных деталей.
Инструмент «Арматурные детали» позволяет размещать прямые, Г-образные и П-образные стержни (по одному или с повторением) в плитах перекрытий и в диафрагмах жёсткости, в частности, в узлах стыковки. Он же обеспечивает обрамление отверстий в плитах и диафрагмах, усиление краёв и стыков Ж/Б элементов.
Обрамление отверстий
На любом этапе конструирования диафрагмы можно получить спецификацию арматуры, информацию о среднем расходе стали на кубометр бетона. Спецификация арматуры может быть помещена на лист чертежа в виде таблицы по нажатию одной кнопки. Аналогично формируются и размещаются на чертеже диафрагмы ведомость деталей (с эскизами и размерами), ведомость расхода стали и блок примечаний.
Чертеж диафрагмы
В новой версии существенно повышена графическая выразительность чертежей. На чертежах армирования можно применить линии различных типов, в том числе, созданных пользователем. Вес линий определяет печатаемую толщину согласно масштабу вида по таблице, управляемой пользователем. Отдельное диалоговое окно позволяет выполнить настройку цвета и веса линий в соответствии с диаметром арматуры.
Армирование диафрагм можно увидеть на плане и в 3D виде. На плане и в 3D можно указывать арматурные стержни с помощью мыши и выделять зоны армирования и группы деталей для контроля их свойств и редактирования параметров (индивидуального и группового).
Армирование диафрагм на плане и в 3D виде
Узлы стыковки диафрагм обозначаются на плане. Узел в укрупнённом масштабе представляется в отдельном виде, где его можно графически редактировать: разместить арматурные детали, нанести необходимые обозначения, надписи и размеры, установить границы отсечения видимой области. Все изменения, вносимые на чертеже узла, автоматически учитываются в других видах и спецификациях диафрагм. Вид узла можно поместить на лист чертежа. Масштаб любого вида можно скорректировать, как до, так и после размещения на листе чертежа.
Работая с планом этажа в режиме армирования, можно получить общую спецификацию арматуры на все диафрагмы этажа. Опционно стержни малых диаметров могут быть представлены как погонаж с учётом перерасхода на нахлёст.
Справочная система расширена и дополнена. Добавлен целый ряд других эффективных функций, реализующих многочисленные пожелания пользователей и рекомендации экспертов.




